Appartement 3 pièces de 62 m² à LA VERPILLIERE (38290)
La Verpillière 38290
0
Honoraires à la charge du vendeur.
Appartement 3 pièces 62 m² Résidence récente à LA VERPILLIERE (38290) Idéal investisseur ou résidence principale
Appartement coup de coeur ! à LA VERPILLIERE, découvrez ce superbe appartement T3 de 62 m², situé au 2ème étage d'une résidence sécurisée et moderne construite en 2013. Profitez d'un cadre de vie idéal grâce à son orientation plein sud, qui baigne chaque pièce de lumière naturelle.
Caractéristiques principales :
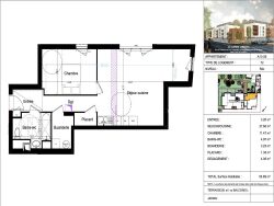
Surface : 62 m² (avec une grande Terrasse exposition OUEST), optimisée et fonctionnelle Chambre : deux grande chambres de près de 12 m² Séjour : Lumineux et spacieux, orienté OUEST Cuisine : Entièrement équipée Salle d'eau : Moderne, avec baignoire Place de stationnement privatif Équipements : Volets roulants électriques DPE : D Localisation : Situation : Centre-ville, quartier résidentiel calme À proximité : Écoles, commerces, bus et transport en commun Cet appartement représente une véritable opportunité pour celles et ceux qui recherchent un espace de vie moderne, confortable et proche de toutes les commodités.
N'attendez plus pour le visiter !
Contactez-moi dès maintenant pour planifier une visite et laissez-vous séduire par le charme de cet appartement.
Informations complémentaires : Surface : 62 m² Prix du bien : 175 000 À propos de la copropriété : Pas de procédure en cours Nombre de lots : 60
Charges prévisionnelles annuelles : 1028 Honoraires : À la charge du vendeur Date de réalisation du diagnostic énergétique : 30/07/2025 .
Honoraires à la charge du vendeur. Dans une copropriété de 60 lots. Quote-part moyenne du budget prévisionnel 1 028 /an. Aucune procédure n'est en cours. Classe énergie C, Classe climat A Montant estimé des dépenses annuelles d'énergie pour un usage standard : entre 760.00 et 1080.00 sur les années 2021, 2022 et 2023 (abonnements compris). Les informations sur les risques auxquels ce bien est exposé sont disponibles sur le site Géorisques : georisques.gouv.fr.