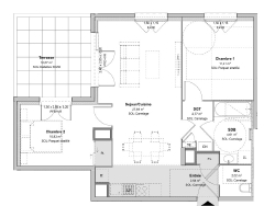
A Vénissieux, idéalement située face au parc Clos Layat et à deux pas de toutes commodités. je vous propose de visiter ce très bel appartement de 62,27m² avec sa Terrasse aux dernières normes comprenant : Une entrée, un séjour avec cuisine ouverte donnant sur la grande Terrasse de 12,07m² , deux chambres, une salle de bain et un WC. Isolation phonique et thermique renforcés, faibles charges. Bâtiment basse consommation Merci de contacter votre conseiller Grégory pour plus d'informations Visuel non contractuel. Copropriété de 177 lots. Charges annuelles : 900 euros.