Les charges de location sont prévisionnelles mensuelles avec régularisation annuelle.
La part des honoraires pour la réalisation de létat des lieux de ce bien est de 161.38 euros.
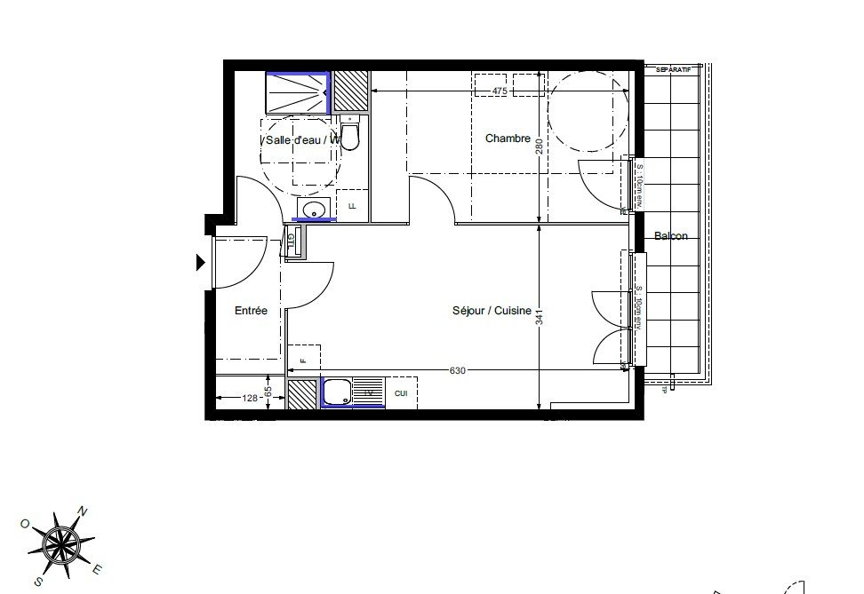
UN APPARTEMENT 3 PIÈCES EN DUPLEX au premier étage COMPRENANT : UN SÉJOUR, UNE CUISINE INDÉPENDANTE AMÉNAGÉE, UNE CHAMBRE, UNE SALLE DE D'EAU AVEC WC; A L'ÉTAGE UNE CHAMBRE. Pompe à chaleur AIR/EAU et eau chaude par ballon plat électrique. Nous contacter au 01 60 94 90 00. Une étude de dossier sera réalisée avant la visite. Les informations sur les risques auxquels ce bien est exposé sont disponibles sur le site Géorisques : www.georisques.gouv.fr
3
2
1
1
1 sur 1
537.39 %
120 € / mois
1970
Oui
Oui (3 lots)
Consommations énergétiques
Logement économe
197
Logement énergivore (kWhEP/m2/an)
Émissions de gaz à effet de serre
Faible émission de GES
6
Forte émission de GES(kgeqCO2/m2/an)
Contact KHERFALLAH
Contacter gratuitement à l'aide du formulaire ci-dessous.