C'est sur la commune de GRIES que nous vous proposons notre tout nouveau programme immobilier : La Résidence Le Renaissance GRIES est en effet idéalement situé à : - 7 mn de Bischwiller - 10 mn de Haguenau - 12mn de Brumath - 30 mn de Strasbourg Les liaisons se font tout naturellement en voiture, Bus CTBR ou Train via Kurtzenhouse à 2 mn. Gries n'a rien à envier aux grandes agglomérations : Commerces, Médecins, Ecoles, périscolaire, crèche pour le confort de tous.
Nous avons voulu pour vous une résidence à taille humaine, 2 fois 7 logements composée de larges et belles terrasses et de jardins où il fait bon vivre, dotée de l'ascenseur pour des déplacements facilités.
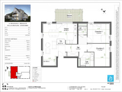
Découvrez cet appartement 3 pièces d'une surface de 68 m² . Il se compose d'une pièce à vivre donnant sur une belle terrasse, de deux chambres, d'une salle d'eau et de toilettes séparés.
Cet appartement est proposé à l'achat pour 227 264 . Les frais d'agence sont à la charge du vendeur.
Découvrez toutes les originalités de cet appartement à vendre en prenant RDV avec notre équipe.
Notre offre propose des logements du F2 au F4
F2 à partir de 136 824 F3 à partir de 187 344 F4 à partir de 294 680
Demandez votre RDV personnalisé en nous contactant via notre site www.axhome.net ou par téléphone au 03 88 61 37 09.
Bien soumis au régime de la copropriété. Le DPE sera remis à réception du logement.
Les informations sur les risques auxquels ce bien est exposé sont disponibles sur le site Géorisques : www.georisques.gouv.fr
Honoraires à la charge du vendeur. Non soumis au DPE. Les informations sur les risques auxquels ce bien est exposé sont disponibles sur le site Géorisques : georisques.gouv.fr.
Carte pro. CPI 67012016000014808 AC ADC 6701 2020000243374. Ax'Home Immobilier - 2 agences de proximité pour mieux vous accompagner.
Oberhausbergen - 104A Route de Saverne (en face de Prowin) Wiwersheim - 33 Allée de l'Economie (Galerie 'Au Jardin des Sens' au dessus d'Esprit Pain)
68.55 m²
3 315 €
33 m²
3
2
1
1 (séparé)
1 sur 2
30/03/2024
Est
Nord
Oui
1
Oui
Contact AX'HOME IMMOBILIER
Contacter gratuitement à l'aide du formulaire ci-dessous.