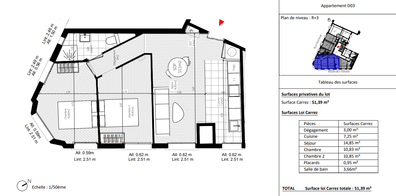
Au rez-de-chaussée d'un immeuble bien entretenu, découvrez cet appartement de plus de 60 m² (loi Carrez). Il se compose d'une entrée, d'un séjour, de deux chambres, d'une cuisine indépendante aménagée et équipée, d'une salle d'eau avec WC et d'un espace de rangement. Cet appartement nécessite quelques travaux.
Deux caves complètent ce bien.
Possibilité de louer une place de parking boxée à proximité.
Côté localisation, vous profiterez d'un quartier vivant et recherché : commerces, marché, restaurants et écoles se trouvent à quelques pas. Les transports sont également très accessibles bus, métro Ligne 13 et gare d'Asnières (accès direct Saint-Lazare en moins de 10 minutes).
Un environnement agréable, pratique et animé qui séduira aussi bien les jeunes couples que les professions libérales ou investisseurs à la recherche d'un bien attractif à Asnières-sur-Seine.
Honoraires inclus de 5% TTC à la charge de l'acquéreur. Prix hors honoraires 256 190 . Dans une copropriété de 28 lots. Quote-part moyenne du budget prévisionnel 1 560 /an. Aucune procédure n'est en cours. Classe énergie F, Classe climat E Logement à consommation énergétique excessive. Montant estimé des dépenses annuelles d'énergie pour un usage standard : entre 1870.00 et 2590.00 sur les années 2021, 2022 et 2023 (abonnements compris). Les informations sur les risques auxquels ce bien est exposé sont disponibles sur le site Géorisques : georisques.gouv.fr. . INNOVE IMMO, partenaire de vos projets de vie
Nous vous informons que dans le cadre de l'article L561-5 du Code monétaire et financier, une pièce d'identité vous sera demandée avant chaque visite. Retrouvez l'annonce de l'agence immobilière INNOVE IMMO - Paris sur : https://www.innove-immo.com/ref/VA5403
60.06 m²
4 479 €
13 m²
3
2
1
1
5 %
130.00 € / mois
1930
Oui
Oui
Oui (28 lots)
Consommations énergétiques
Logement économe
347
Logement énergivore (kWhEP/m2/an)
Émissions de gaz à effet de serre
Faible émission de GES
54
Forte émission de GES(kgeqCO2/m2/an)
Contact Nicolas Grandemange
Contacter gratuitement à l'aide du formulaire ci-dessous.