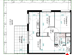
Aux portes de Lyon, à seulement 5 mins des belles enseignes du centre commercial Chasse Sud et à proximité de l'échangeur autoroutier permettant de rejoindre Givors er Saint-Etienne, savourez à la qualité de vie résidentielle de Chasse sur Rhône, une commune à taille humaine et attrayante proposant toutes les commodités du quotidien, commerces de proximité, établissements scolaires, bibliothèque, école de musique et complexe sportif. La Gare TER permet de rejoindre Lyon en moins de 20 min. Je vous propose à la vente ce magnifique T3 de 57,76m² qui saura vous séduire par sa situation, son séjour avec sa cuisine américaine donnant sur un beau jardin de 47,81m² et sa terrasse de 12,55m². Il est également composé d'une salle de bains, de deux chambres, ainsi qu'un WC indépendant. Deux places de parking sont vendu avec l'appartement Bâtiment basse consommation Contactez Gregory au O6.69.26.64.26 pour plus d'informations Visuel non contractuel Copropriété de 180 lots (Pas de procédure en cours). Charges annuelles : 850 euros.