Appartement 3 Pièces Lumineux avec Terrasse Exceptionnelle à
Villiers-sur-Marne 94350
0
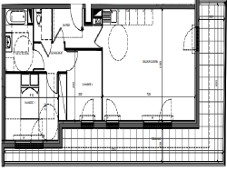
Découvrez ce magnifique appartement 3 pièces NEUF de 68 m2 bénéficiant d'une luminosité remarquable et d'un espace extérieur rare. Idéalement situé, il offre un cadre de vie moderne et pratique, L'appartement se compose de : - Un vaste séjour-cuisine ouvert de 33,53 m2. - 2 chambres confortables (11,47 m2 et 9,31 m2). - Une salle de bain moderne (avec meuble vasque et miroir LED). - WC séparés. - Une place de parking privative. Profitez d'une immense terrasse de 30 m2 Prestations pensées pour votre bien-être : Sol : Parquet stratifié de qualité dans les pièces de vie, carrelage élégant dans la cuisine et la salle de bain. Salle de Bain : Équipée d'un sèche-serviettes électrique et d'un meuble vasque avec miroir LED. Chauffage : Système moderne pilotable à distance pour une gestion énergétique optimisée. Profitez d'une accessibilité maximale : RER E : Gare accessible en seulement 8 minutes à pied. Bus : Proximité immédiate des lignes 206, 207 et 209. Voiture : Accès rapide aux autoroutes A4 et N303. Pas de frais d'agence, Frais de notaire réduits Photos non contractuelles.
68 m²
6 176 €
30 m²
3
2
1
1
4
1 (30 m²)
2
1
Consommations énergétiques
Logement économe
70
Logement énergivore (kWhEP/m2/an)
Émissions de gaz à effet de serre
Faible émission de GES
10
Forte émission de GES(kgeqCO2/m2/an)
Contact AMAR Denis
Contacter gratuitement à l'aide du formulaire ci-dessous.