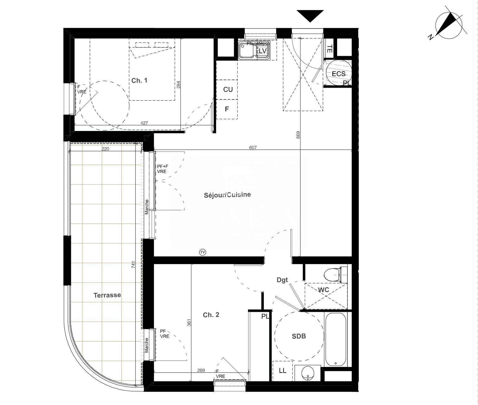
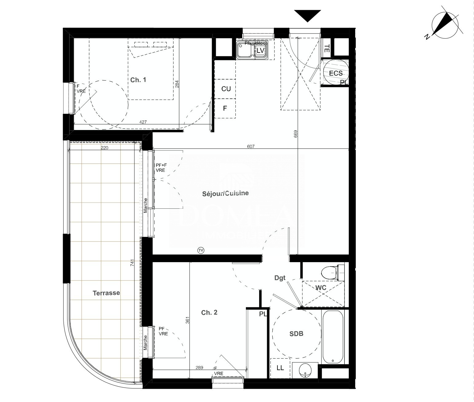
Votre agence Tactik Immo, vous propose cet appartement 3 pièces de 63,14m2 en très bon état, avec terrasse et stationnements. Il se situe au 2e étage avec ascenseur, au sein d'une résidence récente (2021) nichée sur les hauteurs de Balaruc les Bains, dans un environnement calme et résidentiel. Ce logement se compose d'une entrée avec rangements intégrés, d'une pièce de vie ensoleillée avec cuisine ouverte entièrement équipée, d'une terrasse privative, de deux chambres avec placards, d'une salle d'eau et de toilettes séparés. En annexe : un garage double, ainsi qu'une place parking couverte au sous-sol de la résidence. Accès autoroute A9 à 4km, Sète à 8km, Montpellier à 22km. REF.834 Les informations sur les risques auxquels ce bien est exposé sont disponibles sur le site Géorisques : www.georisques.gouv.fr
63.14 m²
5 543 €
23 m²
3
2
1
1
2 sur 3
120 € / mois
2021
Ouest
Oui
1
2
1
Oui
Oui
Oui
Oui (88 lots)
Consommations énergétiques
Logement économe
30.2
Logement énergivore (kWhEP/m2/an)
Émissions de gaz à effet de serre
Faible émission de GES
7
Forte émission de GES(kgeqCO2/m2/an)
Contact Tactik Immo
Contacter gratuitement à l'aide du formulaire ci-dessous.