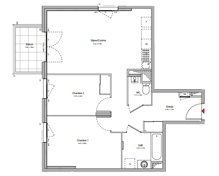
Ref : L03380 Votre agence SIA IMMOBILIER vous propose: Cet appartement est situé dans une résidence récente. Ce fabuleux 3 pièces de 63.18 m2 comprenant une entrée, un séjour cuisine donnant sur un balcon de 4.26 m2 exposé Nord Est, un espace nuit comprenant 2 chambres, une salle de bain et un w.c. Appartement répondant au normes et labels de qualité RT2012/RE2020 encore sous garantie décennale pendant 10 ans sur toute la structure de l'immeuble. Acune procédure encours. Frais de notaire REDUIT
Transport : TCL
Copropriété de 30 lots sur plusieurs batiments de 7 étages (Pas de procédure en cours). Batiment basse consomation, faibles charges ! Charges annuelles : 2116 euros. Montant estimé des dépenses annuelles d'énergie de ce logement pour un usage standard 272EUR et 368EUR. 01/01/2021 Les informations sur les risques auxquels ce bien est exposé sont disponible sur le site Géorisque: www.géorisques.gouv.fr Pan et informations disponible : Joingnable 7J/7.Contacter Barbara : 06 89 16 73 49. Photos non contractuelle Les informations sur les risques auxquels ce bien est exposé sont disponibles sur le site Géorisques : www.georisques.gouv.fr
63.18 m²
5 366 €
4 m²
23 m²
3
2
1
1
5 sur 7
176 € / mois
2024
Est
Nord
1 (4 m²)
Oui
1
Oui
Oui
Consommations énergétiques
Logement économe
66
Logement énergivore (kWhEP/m2/an)
Émissions de gaz à effet de serre
Faible émission de GES
22
Forte émission de GES(kgeqCO2/m2/an)
Contact DIAS Barbara
Contacter gratuitement à l'aide du formulaire ci-dessous.