Appartement 30?m²? avec terrasse, dans un cadre nature et calme
Fleury-les-Aubrais 45400
0
Appartement d'environ 30?m² lumineux, balcon sans vis?à?vis, parking privé & court de tennis?! Résidence 2014 au calme total.
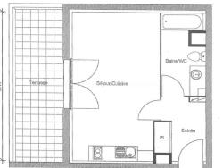
Au 1?? étage d'une résidence moderne (2014) parfaitement entretenue, découvrez cet appartement d'environ 30?m² prêt à vivre?:
- Entrée avec placard ? rangement optimisé
- Pièce de vie 20?m² baignée de lumière, exposition idéale
- Cuisine entièrement aménagée & équipée
- Balcon sans vis?à?vis, vue dégagée sur la nature
- Salle de bains moderne avec WC
- Place de parking privative incluse
Atout rare?: accès à un terrain de tennis réservé aux copropriétaires ? détente garantie sans quitter la résidence.
Copropriété à taille humaine, charges maîtrisées. Idéal premier achat, investissement locatif ou pied?à?terre au vert tout en restant proche des commodités (bus, commerces, accès routiers).
Visite coup de?c?ur assurée?!
Contactez?moi pour plus d'infos ou pour organiser une visite.
Cette annonce référence 297040 vous est présentée par votre agent commercial BSK Immobilier CHARLOTTE DENIS (EI) immatriculé au RSAC de ORLEANS (45000) sous le numéro 92755997100019.
Prix du bien : 99 000,00 €
Les honoraires d'agence sont à la charge du vendeur.
A propos de la copropriété :
Pas de procédure en cours.
Nombre de lots : 181
Charges prévisionnelles annuelles : 569,91 €
A propos des performances énergétiques :
Date de réalisation du diagnostic énergétique : 31/10/2023
Score DPE : 173 kWhEP/m²/an
Score GES : 33 kgepCO2/m²/an
Montant estimé des dépenses annuelles d'énergie pour un usage standard : entre 470.00 € et 670.00 € par an. Prix moyens des énergies indexés sur l'année 2021 (abonnements compris).
Les informations sur les risques auxquels ce bien est exposé sont disponibles sur le site Géorisques : www.georisques.gouv.fr
29 m²
3 414 €
1
1
1
1 sur 1
2012
Sud
Consommations énergétiques
Logement économe
173
Logement énergivore (kWhEP/m2/an)
Émissions de gaz à effet de serre
Faible émission de GES
33
Forte émission de GES(kgeqCO2/m2/an)
Contact CHARLOTTE DENIS
Contacter gratuitement à l'aide du formulaire ci-dessous.