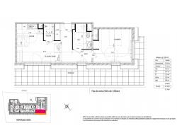
Régine Villedieu Immobilier à Cherbourg, vous propose : Un appartement T2 en VEFA à Barneville Carteret, au dernier étage d'une résidence en copropriété, comprenant : entrée avec placard, cellier, cuisine, séjour/salon, salle d'eau avec wc, chambre, terrasse. Une place de garage privative en option. Livraison fin 2026. Plus de lots disponibles sur demande. À 46 min de NAVAL GROUP / Cherbourg-en-Cotentin À 40 min d' ORANO / La Hague À 25 min de l'EPR / Flamanville Honoraires TTC charge vendeur. Les informations sur les risques auxquels ce bien est exposé sont disponibles sur le site Géorisques : www.georisques.gouv.fr Surface CARREZ : 49.82 m²
49 m²
5 138 €
20 m²
2
1
1
1
2 sur 2
2026
Oui
Oui
Contact Regine Villedieu immobilier
Contacter gratuitement à l'aide du formulaire ci-dessous.