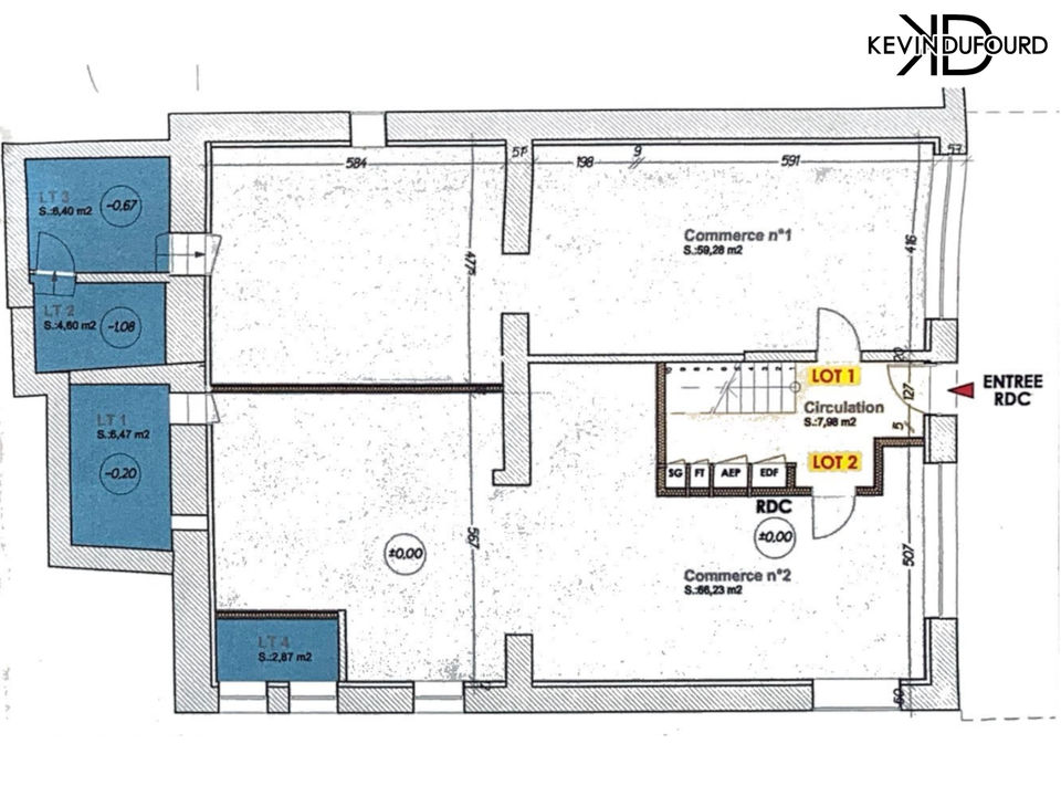
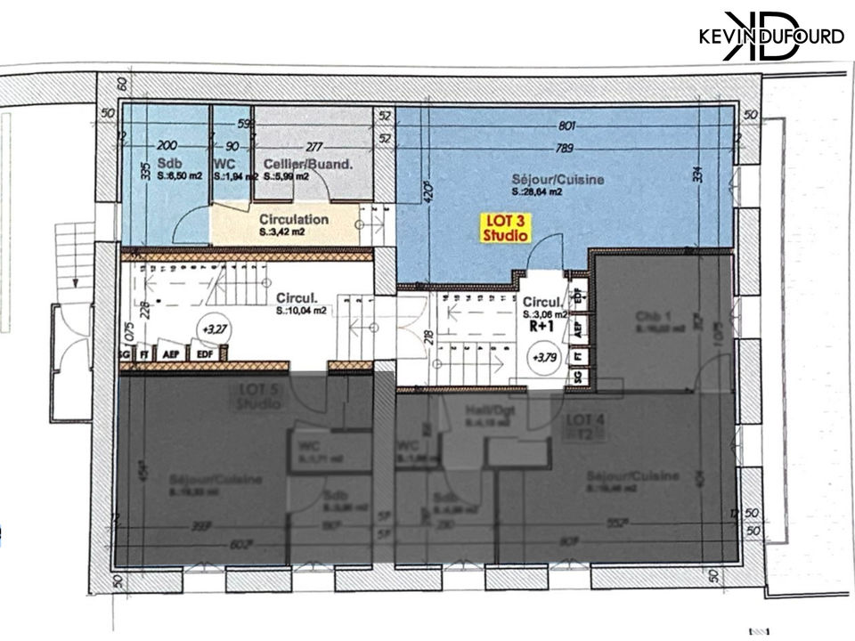
Fiche Id-UBW174963 : Vals les bains, secteur Centre ville, T3 lot 6 d'environ 51 m2 comprenant 3 piece(s) dont 2 chambre(s) - - Equipements annexes : - chauffage : Electrique - Classe Energie D : 196 kWh.m2.an - (DPE ancienne version) - Plus d'informations disponibles sur demande... - Mentions légales : Proposé à la vente à 73000 Euros (honoraires à la charge du vendeur) - Classe Energie D : 196 kWh.m2.an - (DPE ancienne version) - Montant estimé des dépenses annuelles d'énergie pour un usage standard compris entre 820 et 1150 Euros - Bien en copropriété comprenant 14 lots - Affaire suivie par Mr Laurent COROMINA (Agent immobilier - Responsable) - Reseau Immo-Diffusion Aubenas - Pour plus d'informations, contactez notre secrétariat au 09 74 53 13 81 (Appel gratuit ou prix d'une communication locale) - Les informations sur les risques auxquels ce bien est exposé sont disponibles sur le site Géorisques : www.georisques.gouv.fr
51 m²
1 431 €
3
2
Oui
Oui
Consommations énergétiques
Logement économe
196
Logement énergivore (kWhEP/m2/an)
Émissions de gaz à effet de serre
Faible émission de GES
6
Forte émission de GES(kgeqCO2/m2/an)
Contact IMMO DIFFUSION
Contacter gratuitement à l'aide du formulaire ci-dessous.