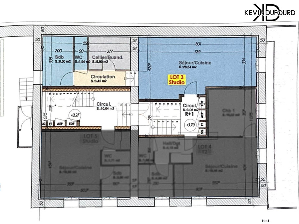
Appartement au deuxième étage sans ascenseur, bien situé au calme, proche arrêt de bus et des commerces, il se compose un salon avec cuisine ouverte ,d'une chambres, salle d'eau et toilette .Ce bien est vendu également avec une petite cave de 3m2.
Cette annonce référence 306356 vous est présentée par votre agent commercial BSK Immobilier PASCAL VANTARD (EI) immatriculé au RSAC de LACHAPELLE-SOUS-AUBENAS (07200) sous le numéro 89798059500036.
Prix du bien : 63 000,00 €
Les honoraires d'agence sont à la charge du vendeur.
A propos de la copropriété :
Pas de procédure en cours.
Nombre de lots : 4
Charges prévisionnelles annuelles : 10,00 €
Les informations sur les risques auxquels ce bien est exposé sont disponibles sur le site Géorisques : www.georisques.gouv.fr
36 m²
1 750 €
2
1
1
2 sur 2
1948
Oui
Oui
Contact Iad France - Pascal VANTARD
Contacter gratuitement à l'aide du formulaire ci-dessous.