69100 ? VILLEURBANNE ? Limite MONTCHAT, à 50 m de la station RECONNAISSANCE BALZAC (Tram T3) - 5 PIÈCES ? 4 CHAMBRES ? 106 M² - APPARTEMENT AVEC BALCON, 4ème étage avec ascenseur
Efficity, l'agence qui estime votre bien en ligne,
Vous propose ce bel appartement situé, à proximité immédiate d'écoles, collèges et lycées, des commerces du Cours Richard Vuitton et du Cours du Dr Long, accessibles à pied. Station de Tramway Reconnaissance Balzac à 50 m ( Gare Part Dieu en 5 minutes ).
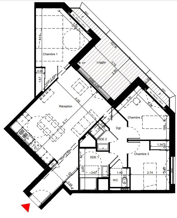
Niché au 4ème étage d'une résidence de 7 étages avec ascenseur, cet appartement de 106,18 m² offre un bel espace de vie. Avec ses 4 chambres spacieuses, toutes équipées de placards aménagés (dont une chambre avec une salle d'eau attenante), son séjour de 28 m2, son balcon, son entée avec un grand placard, sa salle de bains double vasques, il garantit confort et convivialité au quotidien.
Cet appartement offre des prestations de qualité (parquet de chêne dans les chambres, volets roulants électriques?)
Un garage en sous-sol est proposé en sus au prix de 25 000 euros
Situé dans un quartier recherché, cet appartement bénéficie d'une situation idéale. Ne laissez pas passer cette opportunité unique de vivre dans un environnement pratique et dynamique.
Les informations sur les risques auxquels ce bien est exposé sont disponibles sur le site Georisque : georisques. gouv. fr
Carole Grange - EI - est Agent Commercial mandataire en immobilier, immatriculé au Registre Spécial des Agents Commerciaux du Tribunal de Commerce de Lyon 3e Arrondissement sous le n°920082575.
Siège social du mandant : effiCity, 48 avenue de Villiers - 75017 PARIS - Société par Actions Simplifiée, société au capital de 132 373,05 euros, immatriculée au RCS Paris 497 617 746 et titulaire de la Carte professionnelle CPI 7501 2015 000 002 025 - CCI Paris IDF - Caisse de Garantie : GALIAN Assurances 89 rue de la Boétie 75008 Paris
106 m²
4 528 €
27 m²
5
4
1
1
4 sur 7
2007
Oui
Oui
Consommations énergétiques
Logement économe
102
Logement énergivore (kWhEP/m2/an)
Émissions de gaz à effet de serre
Faible émission de GES
18
Forte émission de GES(kgeqCO2/m2/an)
Contact Mme Carole Grange
Contacter gratuitement à l'aide du formulaire ci-dessous.