Salon de Provence, IDÉAL investisseur, venez découvrir en exclusivité ce studio vendu occupé en plein coeur de la ville.
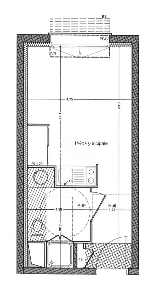
Opportunité parfaite pour un investissement locatif, au 2ème étage sur 3 d'une copropriété calme et sécurisée, il se compose d'une entrée ouvrant sur un séjour de 18 m², une cuisine ouverte et équipée ainsi qu'une salle d'eau avec WC.
Proximité immédiate de toutes les commodités, climatisation réversible, chauffage électrique, double vitrage.
600 euros de charges annuelles de copropriété, 11 lots dont 7 d'habitation, pas de procédure en cours. Honoraires d'agence à la charge du vendeur. Le montant annuel de la taxe foncière est de 513€. DPE C réalisé le 08/04/2025. Consommation énergie primaire : 125 kWh/m²/an. Consommation énergie finale : 54 kWh/m²/an. Les informations sur les risques auxquels ce bien est exposé sont disponibles sur le site Géorisques : www.georisques.gouv.fr
Les informations sur les risques auxquels ce bien est exposé sont disponibles sur le site Georisque : georisques. gouv. fr
Stéphan Rouart représentant de la SARL MYPROJECT-IMMO dont le siège social se situe 44 Route Nationale 8 13080 LUYNES - titulaire de la carte professionnelle CPI CPI13102016000009518 - CCI de Marseille-Provence le 20/10/2024 - immatriculée au RCS de Aix En Provence sous le n°792269656 - immatriculée au Registre Spécial des Agents Commerciaux du Tribunal de Commerce de Montpellier sous le n°792269656.
Siège social du mandant : effiCity, 48 avenue de Villiers - 75017 PARIS - Société par Actions Simplifiée, société au capital de 132 373,05 euros, immatriculée au RCS Paris 497 617 746 et titulaire de la Carte professionnelle CPI 7501 2015 000 002 025 - CCI Paris IDF - Caisse de Garantie : GALIAN Assurances 89 rue de la Boétie 75008 Paris
27 m²
3 481 €
1
1
1
2
1900
Oui
Oui
Consommations énergétiques
Logement économe
125
Logement énergivore (kWhEP/m2/an)
Émissions de gaz à effet de serre
Faible émission de GES
3
Forte émission de GES(kgeqCO2/m2/an)
Contact M. Stéphan Rouart
Contacter gratuitement à l'aide du formulaire ci-dessous.