RUE MONGE - CHARMANT 2P AVEC GRAND BALCON - VUE DEGAGEE
Rare à la vente !
Idéalement situé dans le quartier prisé du Jardin des Plantes, venez découvrir cet appartement de charme avec un grand balcon et une vue dégagée sur les toits de Paris.
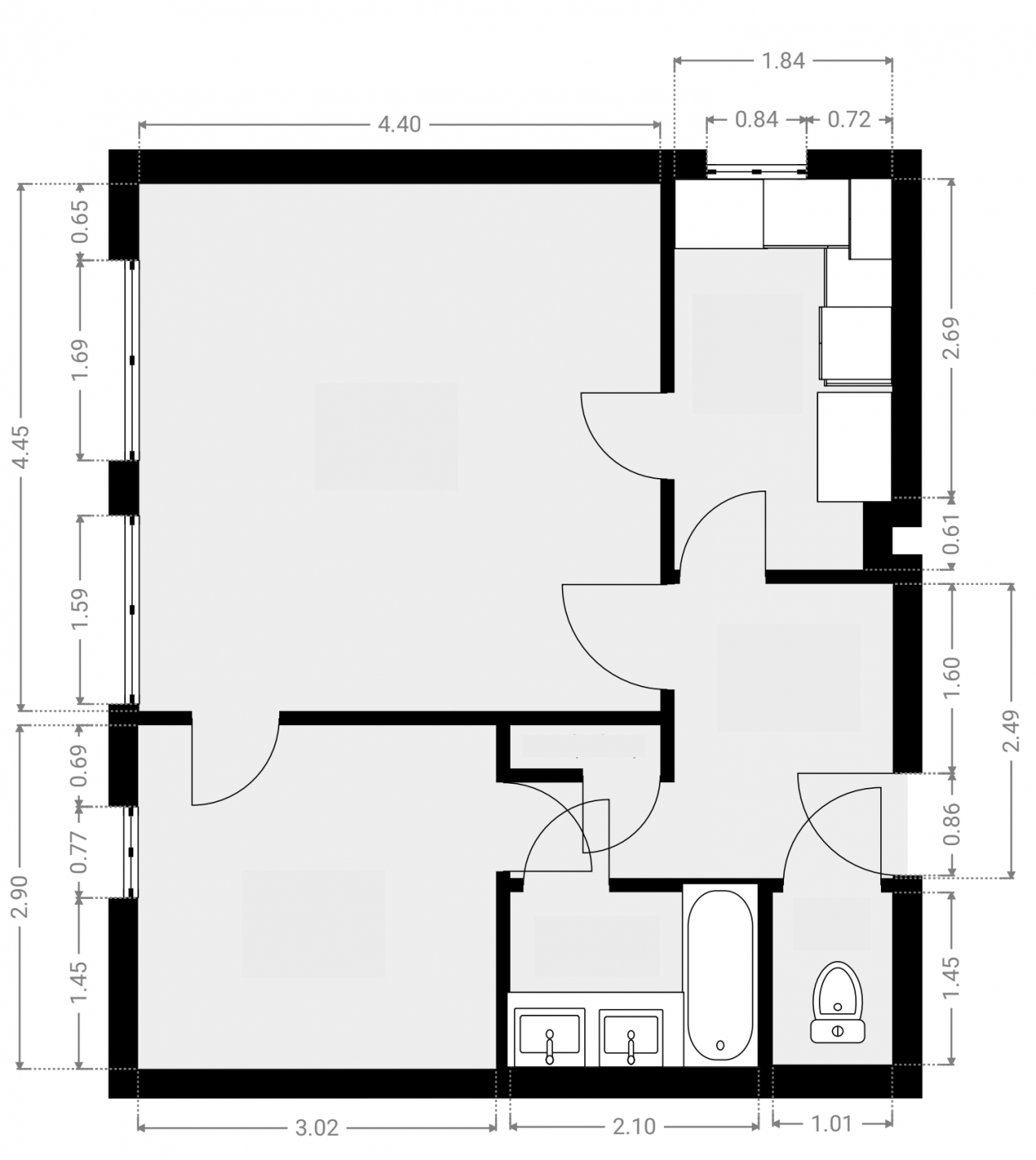
Au 5 ème étage avec ascenseur, il se compose d'une entrée, d'une cuisine indépendante, d'un grand séjour lumineux de 20m2 ouvrant sur un balcon de 5m2, d'une chambre et d'une salle d'eau.
Une cave complète ce bien.
La copropriété est bien entretenue : les parties communes ont été entièrement refaites en 2025.
Charges de copropriété : 154 euros / mois
Taxe foncière : 557 euros
Métros : Rue Monge (ligne 7), Jussieu (ligne 7 et 10)
Bus : 24,57, 61.
Les visites débuteront à partir du 2 novembre.
Les informations sur les risques auxquels ce bien est exposé sont disponibles sur le site Georisque : georisques. gouv. fr
Coralie Frétigné - EI - est Agent Commercial mandataire en immobilier, immatriculé au Registre Spécial des Agents Commerciaux du Tribunal de Commerce de Paris 15e Arrondissement sous le n°914151840.
Siège social du mandant : effiCity, 48 avenue de Villiers - 75017 PARIS - Société par Actions Simplifiée, société au capital de 132 373,05 euros, immatriculée au RCS Paris 497 617 746 et titulaire de la Carte professionnelle CPI 7501 2015 000 002 025 - CCI Paris IDF - Caisse de Garantie : GALIAN Assurances 89 rue de la Boétie 75008 Paris
40 m²
14 250 €
2
1
1
1
5 sur 6
Oui
Oui
Consommations énergétiques
Logement économe
420
Logement énergivore (kWhEP/m2/an)
Émissions de gaz à effet de serre
Faible émission de GES
14
Forte émission de GES(kgeqCO2/m2/an)
Contact Mme Coralie Frétigné
Contacter gratuitement à l'aide du formulaire ci-dessous.