À vendre ? Appartement 2 pièces lumineux ? Fontenay-aux-Roses
Centre-ville / Square du Panorama
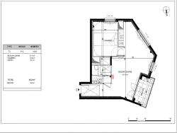
Dans une résidence récente et de standing, découvrez ce bel appartement 2 pièces de 51,1 m², situé au 2e étage avec ascenseur, à seulement 200 m du parc du Panorama et à 10 minutes de marche de la coulée verte.
Descriptif :
Entrée
Salle de séjour lumineuse exposée au nord-est et au sud-est, avec cuisine ouverte, offrant une belle pièce de vie traversante
Accès à un balcon de 3,8 m² orienté sud-est, idéal pour vos moments de détente
Chambre côté nord, au calme
Salle d'eau avec toilettes.
Possibilité de parking en sous-sol en supplément.
Atouts :
Double exposition apportant lumière naturelle et ventilation
Balcon ensoleillé
Résidence récente, prestations de qualité
Environnement calme et verdoyant
À proximité immédiate des transports (métro, gare), vous rejoindrez facilement Paris et ses environs. Vous trouverez également à deux pas tous les commerces, supermarchés et services indispensables au quotidien.
Cet appartement est une occasion rare : espace, confort et emplacement stratégique réunis dans un même bien ! Efficacité énergétique et faibles charges et son isolation renforcée . La résidence répond a la nouvelle norme RE2020 qui vous garantira un confort maximal pour une consommation réduite .Cette acquisition vous permettra de bénéficier des garanties du constructeur vous assurant une sérénité sur votre investissement
Contactez-nous pour plus d'informations ou pour organiser une visite !
Les informations sur les risques auxquels ce bien est exposé sont disponibles sur le site Georisque : georisques. gouv. fr
Wesley Capelo Baubil - EI - est Agent Commercial mandataire en immobilier, immatriculé au Registre Spécial des Agents Commerciaux du Tribunal de Commerce de Nanterre sous le n°480092089.
Siège social du mandant : effiCity, 48 avenue de Villiers - 75017 PARIS - Société par Actions Simplifiée, société au capital de 132 373,05 euros, immatriculée au RCS Paris 497 617 746 et titulaire de la Carte professionnelle CPI 7501 2015 000 002 025 - CCI Paris IDF - Caisse de Garantie : GALIAN Assurances 89 rue de la Boétie 75008 Paris
51 m²
6 725 €
2
1
1
1
2 sur 5
2026
Oui
Oui
Contact M. Wesley Capelo Baubil
Contacter gratuitement à l'aide du formulaire ci-dessous.