17000, LA ROCHELLE ? T3 LUMINEUX AVEC VUE DÉGAGÉE DANS IMMEUBLE HAUSSMANNIEN EN HYPERCENTRE
Raphaël Charbonnier vous propose, ce superbe appartement T3 plein de charme situé au 3? étage d'un immeuble haussmannien, à deux pas du Vieux-Port et de la Place des Petits Bancs .
Un bien rare et lumineux au c?ur du centre historique de La Rochelle !
Caractéristiques du bien
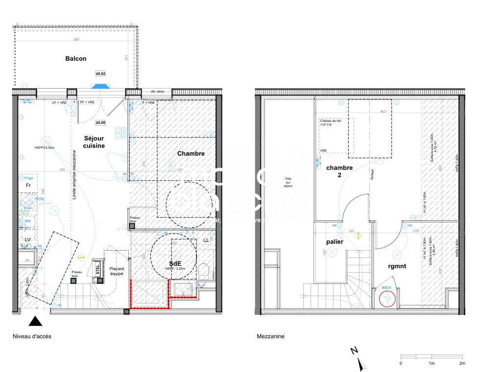
Surface : 59,65 m² (loi Carrez)
Agencement idéal : entrée, séjour exposé plein sud , cuisine indépendante, deux chambres, salle d'eau et WC séparé
Charme de l'ancien : parquet , moulures, belle hauteur sous plafond
Confort moderne : chauffage gaz individuel (chaudière 2019 ), fenêtres PVC double vitrage
Travaux & données techniques
Toiture refaite en 2014 (19?000 €)
Chaudière gaz neuve posée en 2019
Consommation énergétique : env. 1?700 €/an
Taxe foncière 2024 : 1?225 €
Copropriété
Immeuble de 7 lots principaux (5 appartements, 2 commerces)
Charges annuelles : 1?148 € (incluant eau, entretien, assurance, électricité des communs, fonds ALUR)
Travaux récents : cage d'escalier refaite
Travaux prévus 2025 : remplacement de la porte d'entrée + reprise de la façade
Syndic professionnel
Localisation & commodités
Un emplacement ultra central à pied de tout :
Halles centrales à 200 m
Boulangerie, pharmacie, supermarché à moins de 300 m
Écoles maternelle & primaire à 600 m
Collège Fromentin à 750 m
Lycée Valin à 1,2 km
Restaurants, marchés et commerces de quartier immédiats
Transports
Ligne de bus Illico 1B à 5 min à pied
Transports scolaires pour les établissements du secteur
Stationnement résidentiel
En tant que résident du centre-ville, vous pouvez bénéficier de tarifs préférentiels avec abonnement :
Voirie (zone verte) :
1er véhicule : 15 €/mois ou 150 €/an
2? véhicule : 20 €/mois ou 200 €/an
Tarifs réduits selon les revenus ou véhicule peu polluant
Parkings couverts :
Vieux-Port Ouest : 30 €/mois
Maubec : 40 €/mois
Verdun / Vieux-Port Sud : 80 €/mois
Collaboration & accompagnement
Chers confrères et cons?urs,
Si vous avez des clients pour ce bien, je suis ouvert au partage. N'hésitez pas à me contacter !
Futurs acquéreurs :
Besoin d'un coup de pouce pour votre financement ? Je travaille avec un courtier très réactif et efficace. Demandez-moi son contact !
Investissement ? Rentabilité estimée
Bien idéal pour un investissement patrimonial en hypercentre, avec forte demande locative.
Rentabilité brute estimée : 5,00?%
Rentabilité nette estimée : 4,20?%
(Estimation basée sur un loyer de 1?250 €/mois ? données sur demande)
Contact
Pour plus d'informations ou pour organiser une visite, contactez-moi dès maintenant !
Un bien rare à La Rochelle, parfait en résidence principale, pied-à-terre ou investissement de qualité
Les informations sur les risques auxquels ce bien est exposé sont disponibles sur le site Georisque : georisques. gouv. fr
Raphaël Charbonnier - EI - est Agent Commercial mandataire en immobilier, immatriculé au Registre Spécial des Agents Commerciaux du Tribunal de Commerce de La Rochelle sous le n°908071210.
Siège social du mandant : effiCity, 48 avenue de Villiers - 75017 PARIS - Société par Actions Simplifiée, société au capital de 132 373,05 euros, immatriculée au RCS Paris 497 617 746 et titulaire de la Carte professionnelle CPI 7501 2015 000 002 025 - CCI Paris IDF - Caisse de Garantie : GALIAN Assurances 89 rue de la Boétie 75008 Paris
60 m²
5 550 €
3
2
1
1
3 sur 4
1830
Sud
Oui
Oui
Consommations énergétiques
Logement économe
181
Logement énergivore (kWhEP/m2/an)
Émissions de gaz à effet de serre
Faible émission de GES
10
Forte émission de GES(kgeqCO2/m2/an)
Contact M. Raphaël Charbonnier
Contacter gratuitement à l'aide du formulaire ci-dessous.