EN EXCLUSIVITE Appartement 3 Pièces ? SERRIS / Val d'Europe ? 61 m²
Efficity, l'agence qui estime votre bien vous propose :
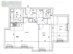
Dans un quartier très prisé de Serris, à seulement 5 minutes à pieds du centre commercial Val d'Europe et 15 minutes du RER A, découvrez ce bel appartement 3 pièces de 61 m², situé dans une résidence élégante et récente (2019) aux prestations de qualité.
Composé d'une vaste entrée avec rangements desservant 2 chambres, une salle de bain, un sanitaire indépendant et un séjour salle à manger avec cuisine ouverte aménagée et équipée.
Points forts :
Belle distribution des pièces
2 chambres confortables de 10 et 12m2
Exposition sud idéale offrant une belle luminosité
Parquet massif dans toutes les pièces
2 Places de parking
Environnement :
Quartier dynamique
Écoles, collège et lycée accessibles à pied
Accès rapide à l'autoroute A4
Transports en commun à proximité (RER A, bus)
Un bien idéal pour une famille, un jeune couple ou un investissement locatif, offrant confort moderne et emplacement stratégique à deux pas de toutes les commodités.
Ne tardez pas ! Contactez-nous pour plus d'informations et programmer une une visite.
Les informations sur les risques auxquels ce bien est exposé sont disponibles sur le site Georisque : georisques. gouv. fr
Lydie Caze - EI - est Agent Commercial mandataire en immobilier, immatriculé au Registre Spécial des Agents Commerciaux du Tribunal de Commerce de Meaux sous le n°448115865.
Siège social du mandant : effiCity, 48 avenue de Villiers - 75017 PARIS - Société par Actions Simplifiée, société au capital de 132 373,05 euros, immatriculée au RCS Paris 497 617 746 et titulaire de la Carte professionnelle CPI 7501 2015 000 002 025 - CCI Paris IDF - Caisse de Garantie : GALIAN Assurances 89 rue de la Boétie 75008 Paris
60 m²
5 467 €
24 m²
3
2
1
1
2
2019
Oui
Oui
Consommations énergétiques
Logement économe
94
Logement énergivore (kWhEP/m2/an)
Émissions de gaz à effet de serre
Faible émission de GES
18
Forte émission de GES(kgeqCO2/m2/an)
Contact Mme Lydie Caze
Contacter gratuitement à l'aide du formulaire ci-dessous.