74190 PASSY ? APPARTEMENT ? 4 PIÈCES ? 3 CHAMBRES ? 100 M² AU SOL ? JARDIN PRIVATIF ? 2 PLACES DE PARKING
Appartement avec jardin privatif et deux stationnements extérieurs, situé à Passy, dans un environnement calme et proche des commodités. Beaucoup de charme avec ses sous-pente et son aspect chalet.
//////// VISITE VIRTUELLE DISPONIBLE /////////
Efficity, l'agence qui estime votre bien en ligne, et Martin BEAUJOUAN vous proposent en vente interactive cet appartement de 52 m² Carrez (99,72m² au sol) comprenant trois chambres, un séjour lumineux avec cuisine ouverte, et un espace extérieur privatif de 150 m² avec abri de jardin. Un bien rare bénéficiant de deux places de parking extérieures et d'une copropriété bénévole à faibles charges.
Idéal pour une famille recherchant un cadre paisible tout en restant proche des axes principaux et des stations de ski.
//////// VISITE VIRTUELLE DISPONIBLE /////////
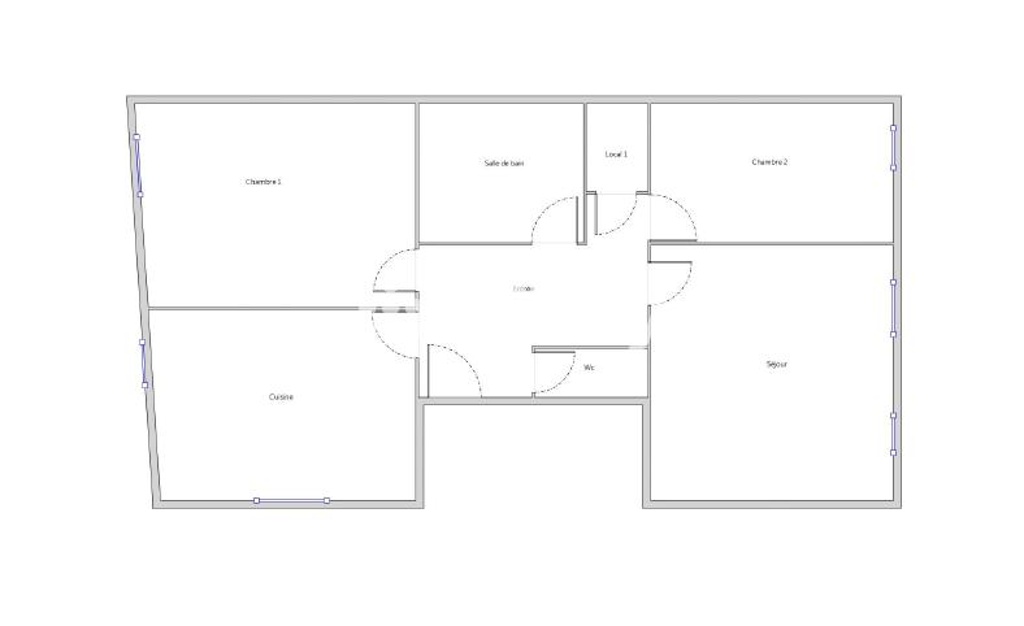
Le bien est composé de la façon suivante :
- Séjour avec cuisine ouverte
- Trois chambres
- Salle de bains et WC séparés
- Jardin privatif avec abri de jardin
- Deux places de parking extérieures
CÔTÉ TECHNIQUE :
- Chauffage par poêle à granulés (50 sacs/an)
- Fibre optique installée
- Charges de copropriété : 270 €/trimestre (syndic bénévole)
- Taxe foncière : 703 €
CÔTÉ PRATIQUE :
- Commerces et écoles à proximité immédiate
- Accès autoroute direct.
- Environ 45mn d'Annecy et 45 mn de Genève en voiture
- Stations de ski accessibles en moins de 20 minutes (Les Houches, Chamonix, Saint-Gervais, Megève)
Ce bien est proposé aux enchères immobilières en ligne.
- Prix de départ HAI : 150 000 €
- Début des enchères : 17/07/2025 à 10h00
- Clôture : 29/09/2025 à 19h00
- Pas d'enchères : 5 000 €
Les honoraires seront calculés à l'issue de la vente interactive.
Participation soumise à agrément préalable. Toutes les offres seront transmises au vendeur, qui reste libre dans son choix.
A VOIR SANS TARDER. Pour plus d'informations sur ce bien ou pour organiser une visite, contactez Martin BEAUJOUAN au +33 7 64 01 36 10 ou par mail à mbeaujouan@efficity.com, toutes les autres annonces sur https://www.efficity.com/mbeaujouan/
Les informations sur les risques auxquels ce bien est exposé sont disponibles sur le site Georisque : georisques. gouv. fr
Martin Beaujouan - EI - est Agent Commercial mandataire en immobilier, immatriculé au Registre Spécial des Agents Commerciaux du Tribunal de Commerce de Annecy sous le n°830153243.
Siège social du mandant : effiCity, 48 avenue de Villiers - 75017 PARIS - Société par Actions Simplifiée, société au capital de 132 373,05 euros, immatriculée au RCS Paris 497 617 746 et titulaire de la Carte professionnelle CPI 7501 2015 000 002 025 - CCI Paris IDF - Caisse de Garantie : GALIAN Assurances 89 rue de la Boétie 75008 Paris
99 m²
1 515 €
4
3
1
1
1
Nord
Oui
Oui
Consommations énergétiques
Logement économe
277
Logement énergivore (kWhEP/m2/an)
Émissions de gaz à effet de serre
Faible émission de GES
8
Forte émission de GES(kgeqCO2/m2/an)
Contact M. Martin Beaujouan
Contacter gratuitement à l'aide du formulaire ci-dessous.