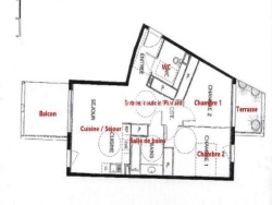
34750 VILLENEUVE-LES-MAGUELONE - COEUR DE VILLE - T3 RÉCENT TRAVERSANT CALME ET LUMINEUX AU DERNIER ÉTAGE EXPOSÉ SUD AVEC 2 TERRASSES ET PARKING - Adel NAFA et Efficity l'agence qui estime votre bien en ligne vous proposent cet appartement traversant de 66,69m² Loi Carrez au 2ème et dernier étage avec ascenseur d'une résidence de 2015 idéalement situé à proximité des commerces, écoles et transports, à 10 min à pied des étangs, proche de la plage du Pilou.
Il se compose d'une entrée avec rangements, d'un séjour lumineux de 20m² ouvrant sur une première terrasse de 7m² exposée SUD, d'une cuisine aménagée et équipée ouverte sur le séjour, de deux chambres de 12m² avec dressings, dont une donne sur une seconde terrasse de 7m², d'une salle de bains moderne avec baignoire, douche et double vasque et d'un grand toilette séparé avec lave-mains de 4m².
Une place de parking en sous-sol complète ces prestations.
Les charges sont de 146 euros (eau froide et eau chaude comprises)
La taxe foncière est de 1511 euros
Les + :
? Appartement en excellent état, lumineux et fonctionnel
? Emplacement idéal
? Aux normes PMR (personnes à mobilité réduite)
? Très grand placard de rangement dans l'entrée pour un maximum de praticité
? Climatisation réversible
? Dernier étage
? Place de parking sous-sol incluse
? Résidence calme et bien entretenue
Les informations sur les risques auxquels ce bien est exposé sont disponibles sur le site Georisque : georisques. gouv. fr
Adel Nafa - EI - est Agent Commercial mandataire en immobilier, immatriculé au Registre Spécial des Agents Commerciaux du Tribunal de Commerce de Nanterre sous le n°510603624.
Siège social du mandant : effiCity, 48 avenue de Villiers - 75017 PARIS - Société par Actions Simplifiée, société au capital de 132 373,05 euros, immatriculée au RCS Paris 497 617 746 et titulaire de la Carte professionnelle CPI 7501 2015 000 002 025 - CCI Paris IDF - Caisse de Garantie : GALIAN Assurances 89 rue de la Boétie 75008 Paris
70 m²
3 714 €
20 m²
3
2
1
1
2 sur 2
2014
Sud
Oui
Oui
Consommations énergétiques
Logement économe
69
Logement énergivore (kWhEP/m2/an)
Émissions de gaz à effet de serre
Faible émission de GES
6
Forte émission de GES(kgeqCO2/m2/an)
Contact M. Adel Nafa
Contacter gratuitement à l'aide du formulaire ci-dessous.