33600 PESSAC ? T1 BIS MEUBLÉ ? BALCON ? PLACE DE PARKING ? RÉSIDENCE SÉCURISÉE ? À DEUX PAS DES UNIVERSITÉS ? BUS 31/34/80 ? PROCHE TRAM B (DOYEN BRUS)
Investissement locatif forte valorisation patrimoniale.
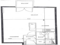
Découvrez ce charmant T1 Bis de 36,2 m², situé au 3e et dernier étage d'une résidence calme et sécurisée construite en 1999.
Avec un locataire rigoureux et un emplacement privilégié à deux pas des universités et des transports, cet appartement constitue une source de revenus immédiats et un investissement à fort potentiel de valorisation.
Cet investissement locatif illustre parfaitement la citation : "n'attendez pas pour acheter de l'immobilier, achetez et attendez." (Harv Eker)
Mode chauffage électrique et dispose de son propre compteur d'eau.
L'appartement se compose d'un séjour lumineux de près de 23 m² avec cuisine ouverte, d'un coin nuit, d'une salle de bain, de toilettes séparées et d'un balcon agréable.
Une place de parking extérieure complète le tout.
La résidence offre également un local vélo, un local poubelle et un petit parc.
Localisation idéale : à proximité immédiate des universités (KEDGE, Université de Bordeaux), des commerces, à deux pas des arrêts de bus (31, 34, 80) et proche du tram B (arrêt Doyen Brus).
On aime :
- Place de parking
- Économe en énergie
- Balcon
- Parfaitement entretenu
- Résidence sécurisée
- À deux pas des universités
- Transports en commun à proximité
Contactez-moi pour prévoir une visite.
Les informations sur les risques auxquels ce bien est exposé sont disponibles sur le site Georisque : georisques. gouv. fr
Nicolas Cousot - EI - est Agent Commercial mandataire en immobilier, immatriculé au Registre Spécial des Agents Commerciaux du Tribunal de Commerce de Bordeaux sous le n°892240359.
Siège social du mandant : effiCity, 48 avenue de Villiers - 75017 PARIS - Société par Actions Simplifiée, société au capital de 132 373,05 euros, immatriculée au RCS Paris 497 617 746 et titulaire de la Carte professionnelle CPI 7501 2015 000 002 025 - CCI Paris IDF - Caisse de Garantie : GALIAN Assurances 89 rue de la Boétie 75008 Paris
36 m²
4 278 €
23 m²
1
1
1
3 sur 3
1999
Ouest
Oui
Oui
Consommations énergétiques
Logement économe
180
Logement énergivore (kWhEP/m2/an)
Émissions de gaz à effet de serre
Faible émission de GES
5
Forte émission de GES(kgeqCO2/m2/an)
Contact M. Nicolas Cousot
Contacter gratuitement à l'aide du formulaire ci-dessous.