31000 TOULOUSE - HYPER CENTRE - APPARTEMENT T2/3 A RENOVER - LUMINEUX - AU CALME - TRES BEAU POTENTIEL
Efficity l'agence qui estime votre bien en ligne vous propose cet appartement en hyper centre de Toulouse à réhabiliter.
Actuellement exploité à titre professionnel, ce bien à l'avantage d'avoir la double destination !
Situé dans un petit immeuble datant d'avant 1900, il a tout le charme des appartements Haussmanniens : beaux volumes, belle hauteur sous plafond, moulures, menuiseries, luminosité...
Il dispose également d'un ascenseur.
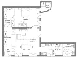
Pouvant être redessiner en appartement de 2 ou 3 pièces, il offre de belles possibilités d'aménagement (voir photos).
Avec ses 94m² de surface au sol et 91,50m² loi carrez, vous pourrez laisser libre cour à votre imagination dans ce bel espace pouvant offrir un séjour de près de 50m².
Idéalement situé près du Métro Esquirol, il se trouve à proximité d'une école et de nombreuses commodités.
La production d'eau chaude et de chauffage se fait par le gaz de ville.
L'appartement est doté de la FIBRE.
Enfin, une cave de 10m² est rattaché à ce bien.
Produit rare s'il en est, l'opportunité est d'autant plus à saisir au plus vite !
Pour tout complément d'information et/ou pour une visite, vous pouvez me contacter : Céline DARGELAS - 06 48 13 27 35.
Les informations sur les risques auxquels ce bien est exposé sont disponibles sur le site Georisque : georisques. gouv. fr
Celine Dargelas - EI - est Agent Commercial mandataire en immobilier, immatriculé au Registre Spécial des Agents Commerciaux du Tribunal de Commerce de Toulouse sous le n°509626735.
Siège social du mandant : effiCity, 48 avenue de Villiers - 75017 PARIS - Société par Actions Simplifiée, société au capital de 132 373,05 euros, immatriculée au RCS Paris 497 617 746 et titulaire de la Carte professionnelle CPI 7501 2015 000 002 025 - CCI Paris IDF - Caisse de Garantie : GALIAN Assurances 89 rue de la Boétie 75008 Paris
94 m²
3 819 €
54 m²
3
2
1
1
1 sur 2
Oui
Oui
Consommations énergétiques
Logement économe
183
Logement énergivore (kWhEP/m2/an)
Émissions de gaz à effet de serre
Faible émission de GES
5
Forte émission de GES(kgeqCO2/m2/an)
Contact Mme Celine Dargelas
Contacter gratuitement à l'aide du formulaire ci-dessous.