VOTRE NOUVELLE RESIDENCE A SAINT PIERRE DE CHANDIEU 69780 , une chance unique de devenir propriétaire aux portes de Lyon comme un air de campagne en lisière de la ville de Lyon .
Corinne BIDOT et Efficity , vous proposent ce lumineux et grand T3 de 60 m² qui sera situé au 2er étage d'une résidence en plein centre de Saint Pierre de Chandieu.
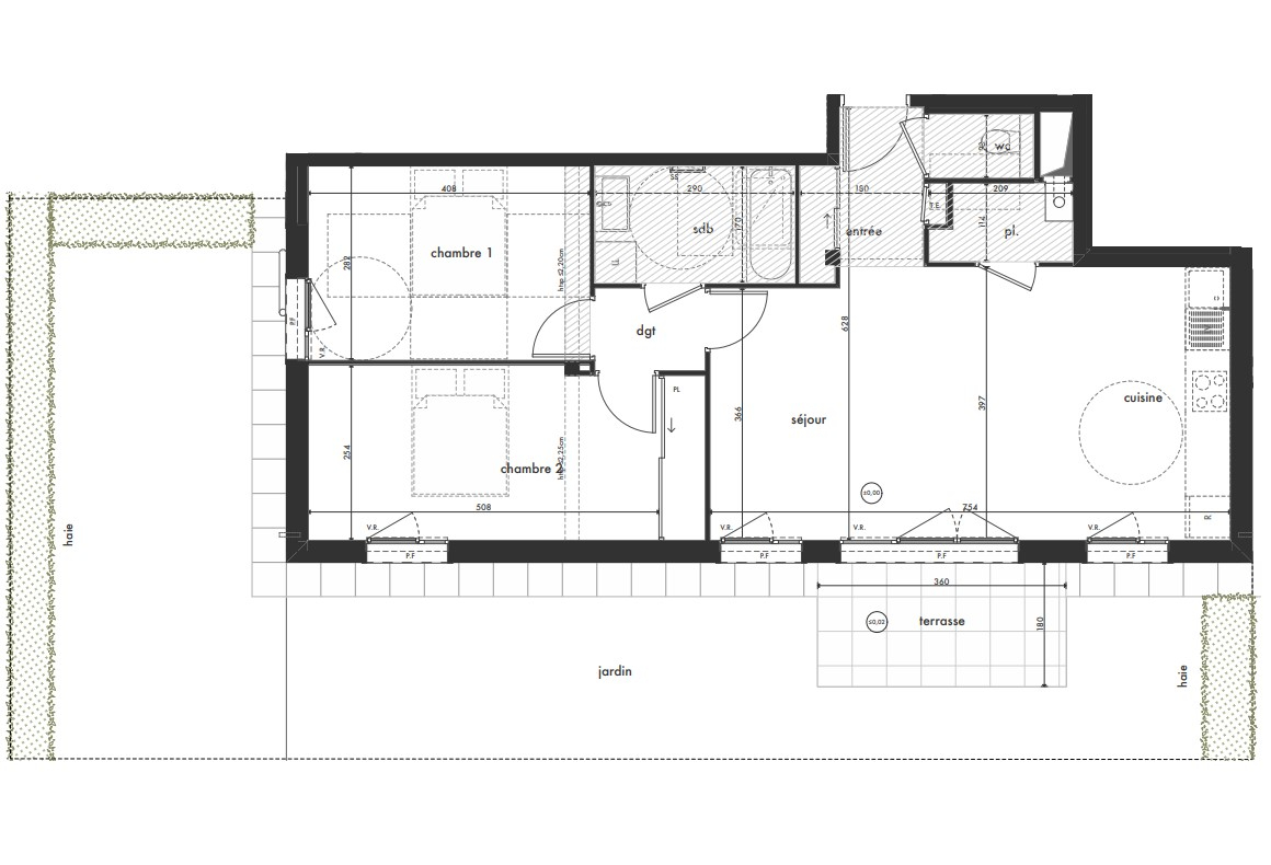
Le logement se compose d'un grand séjour/cuisine de 30m ², de deux chambres de 11,70 m² et 11,50 m², d'une buanderie, d'une belle salle de bain de 5 m², d'un WC séparé ainsi que de nombreux rangements et placards
Le logement dispose également d'un beau balcon de quasiment 12 m² exposé au SUD, ce qui vous permettra de profiter pleinement du soleil toute l'après-midi.
Le prix comprend une place de parking en sous-sol
POUR VOTRE CONFORT :
? Balcons avec profondeur supérieure à 2 mètres.
? Volets roulants électriques avec centralisation.
? Interrupteurs avec témoins lumineux dans les logements.
? Placards avec aménagements intérieurs intégrés.
? Chauffage par pompe à chaleur avec comptage individuel (règlementation RE2020).
? Accessibilité et adaptabilité de l'ensemble des logements à la norme PMR avec possibilité d'adaptation supplémentaire pour besoin spécifique.
Située à proximité de tous services (Espace de santé Simone Veil, infirmières, masseurs kinésithérapeutes...) et commerces (pharmacie, salon de coiffure, restauration, alimentation, presse...)
Une opportunité rare d'accéder à la propriété au sein d'une résidence intimiste et à taille humaine qui se destine aux seniors.
Contactez dès à présent Corinne BIDOT par email ou téléphone
Les informations sur les risques auxquels ce bien est exposé sont disponibles sur le site Georisque : georisques. gouv. fr
Corinne Bidot - EI - est Agent Commercial mandataire en immobilier, immatriculé au Registre Spécial des Agents Commerciaux du Tribunal de Commerce de Lyon sous le n°895229227.
Siège social du mandant : effiCity, 48 avenue de Villiers - 75017 PARIS - Société par Actions Simplifiée, société au capital de 132 373,05 euros, immatriculée au RCS Paris 497 617 746 et titulaire de la Carte professionnelle CPI 7501 2015 000 002 025 - CCI Paris IDF - Caisse de Garantie : GALIAN Assurances 89 rue de la Boétie 75008 Paris
69 m²
4 710 €
30 m²
3
2
1
2
2025
Oui
Oui
Consommations énergétiques
Logement économe
100
Logement énergivore (kWhEP/m2/an)
Émissions de gaz à effet de serre
Faible émission de GES
4
Forte émission de GES(kgeqCO2/m2/an)
Contact Mme Corinne Bidot
Contacter gratuitement à l'aide du formulaire ci-dessous.