FENOUILLET (31150) ? APPARTEMENT T2 ? 41 m² ? BALCON ? DOUBLE STATIONNEMENT ? RÉSIDENCE AVEC PISCINE
effiCity, l'agence qui estime votre bien en ligne, vous propose cet appartement 2 pièces de 41 m² situé au 1er étage d'une résidence récente et sécurisée avec piscine, construite en 2004.
Pour visiter, envoyez-moi un SMS Nom + 25 Rue du Bosc : je vous transmettrai le lien vers mon calendrier pour réserver directement un créneau.
Adresse : 25 Rue du Bosc, Résidences Les Berges du Midi, 31150 Fenouillet
Une belle opportunité à saisir, vendu libre !
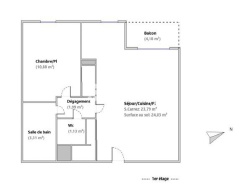
L'appartement se compose d'une pièce de vie lumineuse avec cuisine ouverte donnant sur une baie vitrée et un balcon, parfait pour profiter des beaux jours. L'agencement convivial séduit par sa praticité et son potentiel de personnalisation. Un rafraîchissement est à prévoir, offrant l'opportunité d'aménager ce logement à votre goût.
Côté nuit, une chambre confortable et une salle de bains avec WC complètent le bien.
Un double stationnement extérieur vient s'ajouter aux atouts de cet appartement.
Atouts supplémentaires :
Résidence agréable, sécurisée, avec piscine
Exposition nord-ouest
Emplacement calme à Fenouillet, proche commerces et services
Charges de copropriété : environ 267 € par trimestre, incluant l'entretien des parties communes, la piscine, l'assurance copropriété et le fonds travaux (loi ALUR).
Cet appartement est idéal pour un premier achat ou un investissement locatif.
Contactez-moi dès aujourd'hui pour organiser une visite et découvrir tout le potentiel de ce T2.
Les informations sur les risques auxquels ce bien est exposé sont disponibles sur le site Georisque : georisques. gouv. fr
Olivia Emery - EI - est Agent Commercial mandataire en immobilier, immatriculé au Registre Spécial des Agents Commerciaux du Tribunal de Commerce de Toulouse sous le n°844614214.
Siège social du mandant : effiCity, 48 avenue de Villiers - 75017 PARIS - Société par Actions Simplifiée, société au capital de 132 373,05 euros, immatriculée au RCS Paris 497 617 746 et titulaire de la Carte professionnelle CPI 7501 2015 000 002 025 - CCI Paris IDF - Caisse de Garantie : GALIAN Assurances 89 rue de la Boétie 75008 Paris
41 m²
2 805 €
2
1
1
1 sur 1
2005
Ouest
Oui
Oui
Consommations énergétiques
Logement économe
177
Logement énergivore (kWhEP/m2/an)
Émissions de gaz à effet de serre
Faible émission de GES
5
Forte émission de GES(kgeqCO2/m2/an)
Contact Mme Olivia Emery
Contacter gratuitement à l'aide du formulaire ci-dessous.