92270 - BOIS-COLOMBES - QUARTIER LES BRUYERES - APPARTEMENT LUMINEUX F4 de 96 m² - TERRASSE - ASCENSEUR - TRIPLE EXPOSITION - 2 PARKINGS - CAVE - PROCHE GARE DE BECON - TOUS COMMERCES.
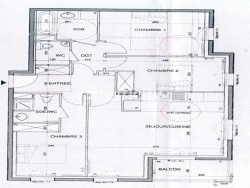
Efficity l'agence qui estime votre bien en ligne, vous propose dans une résidence récente de standing proche du parc des Bruyères, un appartement familial de 96,12 m² loi Carrez. Situé au troisième étage, Il se compose d'une entrée avec rangements, d'une cuisine semie - ouverte, d'un grand séjour bénéficiant d'une double exposition et large ouvrants, de plus de 28 m²donnant sur une terrasse de 19 m² exposé sud, de 3 chambres dont, une suite parentale et d' une salle de bains + wc séparé. De nombreux rangements sont disponibles. Cet appartement au plan parfait, bénéficie d'une grande luminosité toute la journée.
Deux place de parking sécurisées et une cave complète ce bien.
La gare de bécon, les bus, les écoles et de nombreux commerces se trouvent à proximité de cet appartement.
Les informations sur les risques auxquels ce bien est exposé sont disponibles sur le site Georisque : georisques. gouv. fr
Eric Aufour - EI - est Agent Commercial mandataire en immobilier, immatriculé au Registre Spécial des Agents Commerciaux du Tribunal de Commerce de Nanterre sous le n°904650645.
Siège social du mandant : effiCity, 48 avenue de Villiers - 75017 PARIS - Société par Actions Simplifiée, société au capital de 132 373,05 euros, immatriculée au RCS Paris 497 617 746 et titulaire de la Carte professionnelle CPI 7501 2015 000 002 025 - CCI Paris IDF - Caisse de Garantie : GALIAN Assurances 89 rue de la Boétie 75008 Paris
81 m²
7 889 €
26 m²
4
3
1
1
2
2 sur 7
2012
Sud
Oui
Oui
Consommations énergétiques
Logement économe
84
Logement énergivore (kWhEP/m2/an)
Émissions de gaz à effet de serre
Faible émission de GES
16
Forte émission de GES(kgeqCO2/m2/an)
Contact M. Eric Aufour
Contacter gratuitement à l'aide du formulaire ci-dessous.