13080 ? Aix-en-Provence Quartier Luynes / Résidence Ystia
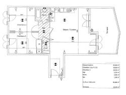
En exclusivité, Appartement LUMINEUX et CALME Type 3 de 63 m² avec TERRASSE de 16 m² EXPOSEE SUD + BOX FERME DOUBLE de 24 m² + CAVE de 8 m² soit une surface privative de 111 m².
EffiCity, l'Agence qui estime votre bien en ligne, vous propose cette belle opportunité d'investissement locatif ou de premier achat, sur un secteur très recherché.
Situé dans une résidence récente et sécurisée de 2011, cet appartement traversant offre :
?une pièce de vie lumineuse de 35 m² avec cuisine équipée (plaque induction Brandt, four Faure, hotte performante), ouverte sur la terrasse exposée plein sud donnant sur les jardins,
?deux chambres de 10,2 m² et 10,4 m² avec placards intégrés,
?une salle de bain avec baignoire et sèche-serviette,
?des toilettes séparées.
Prestations modernes : visiophone, chauffage piloté, fibre internet, installation d'un hub pour borne électrique dans la résidence prêt à être raccordé à votre double box
Appartement libre de toute occupation.
Résidence très calme.
Emplacement stratégique : collège et lycée à 2 minutes à pied, commerces de proximité immédiats, Plan de Campagne à 10 min, zone des Milles à 5 min, hypercentre d'Aix et gare TGV à moins de 15 min.
Forte demande locative sur le secteur : un bien idéal aussi bien pour investir que pour y vivre.
Les informations sur les risques auxquels ce bien est exposé sont disponibles sur le site Georisque : georisques. gouv. fr
Frédéric Contino - EI - est Agent Commercial mandataire en immobilier, immatriculé au Registre Spécial des Agents Commerciaux du Tribunal de Commerce de Marseille sous le n°751489758.
Siège social du mandant : effiCity, 48 avenue de Villiers - 75017 PARIS - Société par Actions Simplifiée, société au capital de 132 373,05 euros, immatriculée au RCS Paris 497 617 746 et titulaire de la Carte professionnelle CPI 7501 2015 000 002 025 - CCI Paris IDF - Caisse de Garantie : GALIAN Assurances 89 rue de la Boétie 75008 Paris
63 m²
4 206 €
3
2
1
1
2011
Sud
Oui
Oui
Consommations énergétiques
Logement économe
128
Logement énergivore (kWhEP/m2/an)
Émissions de gaz à effet de serre
Faible émission de GES
4.6
Forte émission de GES(kgeqCO2/m2/an)
Contact M. Frédéric Contino
Contacter gratuitement à l'aide du formulaire ci-dessous.