34000 MONTPELLIER ? QUARTIER GARE ? ANTIGONE ? F4 DE 140 M² AU 3E ETAGE ? ASCENSEUR ? A RAFRAICHIR
effiCity, l'agence immobilière qui estime votre bien en ligne, vous propose cet appartement traversant, avec deux balcons, à rafraichir.
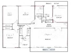
Il se compose d'un séjour de près de 40 m², de trois grandes chambres dont deux avec placards intégrés, d'une grande cuisine avec cellier attenant, d'une salle d'eau avec WC et de toilettes séparées.
Trois placards sont également disponibles dans les dégagements.
Un parking commun est accessible à l'intérieur de la copropriété.
Le chauffage et l'eau chaude sanitaire sont fournis par le chauffage central de la copropriété.
Le vaste séjour peut céder de la place pour une quatrième chambre.
Proche de toutes commodités, à pieds à 5 minutes du tramway et à 7 minutes de la gare Saint Roch, en voiture à 10 minutes de l'autoroute A9, 12 minutes de l'aéroport, 15 minutes des plages.
Les charges de copropriétés sont de 400 €/mois, la taxe foncière, de 2822 €.
Pour davantage d'informations, contacter Nicolas PUTHOD par mail nputhod@efficity.com, par texto au 06 67 94 62 88 et par téléphone.
Les informations sur les risques auxquels ce bien est exposé sont disponibles sur le site Georisque : georisques. gouv. fr
Nicolas Puthod - EI - est Agent Commercial mandataire en immobilier, immatriculé au Registre Spécial des Agents Commerciaux du Tribunal de Commerce de Montpellier sous le n°443164546.
Siège social du mandant : effiCity, 48 avenue de Villiers - 75017 PARIS - Société par Actions Simplifiée, société au capital de 132 373,05 euros, immatriculée au RCS Paris 497 617 746 et titulaire de la Carte professionnelle CPI 7501 2015 000 002 025 - CCI Paris IDF - Caisse de Garantie : GALIAN Assurances 89 rue de la Boétie 75008 Paris
144 m²
3 264 €
40 m²
5
3
1
1
2
3 sur 7
1972
Nord
Oui
Oui
Consommations énergétiques
Logement économe
169
Logement énergivore (kWhEP/m2/an)
Émissions de gaz à effet de serre
Faible émission de GES
25
Forte émission de GES(kgeqCO2/m2/an)
Contact M. Nicolas Puthod
Contacter gratuitement à l'aide du formulaire ci-dessous.