APPARTEMENT NEUF 54m² - CENTRE VILLE - 3 PIÈCES - 1 CHAMBRE - PATIO - TERRASSE - 33260 LA TESTE-DE-BUCH
Efficity, vous propose à la vente cet appartement neuf 54m², à seulement 700m du marché municipal.
Situé au sein d'une maison divisée en seulement deux lots, ce bien offre intimité, confort moderne, indépendance d'une maison sans les contraintes d'une copropriété en immeuble.
Dans un environnement calme, cet appartement neuf offre un cadre de vie idéal.
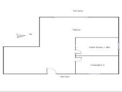
Il se compose d'un salon, d'une cuisine ouverte aménagée et équipée et espace salle à manger, d'une chambre avec placards et d'une salle d'eau. Véritable atout, cet appartement bénéficie d'un agréable extérieur avec une terrasse et un patio, parfaits pour profiter des beaux jours en toute tranquillité.
Une place de stationnement privative complète ce bien.
Contactez-nous pour plus d'informations ou pour organiser une visite.
Les informations sur les risques auxquels ce bien est exposé sont disponibles sur le site Georisque : georisques. gouv. fr
Patricia Villacampa - EI - est Agent Commercial mandataire en immobilier, immatriculé au Registre Spécial des Agents Commerciaux du Tribunal de Commerce de Bordeaux sous le n°884155300.
Siège social du mandant : effiCity, 48 avenue de Villiers - 75017 PARIS - Société par Actions Simplifiée, société au capital de 132 373,05 euros, immatriculée au RCS Paris 497 617 746 et titulaire de la Carte professionnelle CPI 7501 2015 000 002 025 - CCI Paris IDF - Caisse de Garantie : GALIAN Assurances 89 rue de la Boétie 75008 Paris
55 m²
5 727 €
3
1
1
1
Ouest
Oui
Oui
Consommations énergétiques
Logement économe
150
Logement énergivore (kWhEP/m2/an)
Émissions de gaz à effet de serre
Faible émission de GES
5
Forte émission de GES(kgeqCO2/m2/an)
Contact Mme Patricia Villacampa
Contacter gratuitement à l'aide du formulaire ci-dessous.