13014 MARSEILLE - Hauts de Sainte Marthe - 3 PIÈCES - 2 CHAMBRES - 56.0 M² - TERRASSE - EXCELLENT ÉTAT GÉNÉRAL - LUMINEUX - CALME - JARDIN PRIVATIF 42 m²
EffiCity, l'agence qui estime votre bien en ligne, vous propose cet appartement situé au 49 Chemin du Four de Buze, dans le quartier Hauts de Sainte Marthe à MARSEILLE.
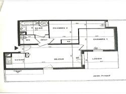
D'une surface de 56.0 m², ce bien se compose de 3 pièces dont 2 chambres (11 m²et 12,5 m²), offrant un espace de vie confortable et fonctionnel, cuisine épurée ouverte sur salon donnant sur terrasse avec jardin. Vous serez charmé par son jardin de 42 m², idéale pour profiter des beaux jours en toute tranquillité.
L'appartement est en excellent état général, rénovée en 2025, avec une luminosité naturelle qui illumine chaque pièce. Situé dans un environnement calme, il vous offrira un havre de paix en plein c?ur de la ville.
Vous apprécierez le séjour spacieux de 23.0 m², ainsi que la loggia de 9.0 m², offrant des espaces de vie supplémentaires pour toute la famille. De plus, la chambre exposée au sud vous garantit une luminosité optimale tout au long de la journée.
Sur les Hauteurs de sainte Marthe, quartier dynamique recherché au calme et proche toutes commodités
Axes autoroutiers et L2 proches et facile d'accès
Dans le quartier écoles primaires, crèches , collège , lycée, facultés, commerces, santé, espaces verts et parcs.
Très bien desservi par bus , gare sncf à quelques minutes.
Cet appartement bénéficie d'une place de stationnement intérieur (un box fermé), un véritable atout dans cette zone résidentielle. La construction récente en 2012 ainsi que les matériaux de qualité tels que le béton assurent une excellente longévité du bien.
Copropriété de 2012 très bien entretenue vidéo surveillance portail et digicode caméra.
Charges comprenants eau chaude et froide espace verts et communs.
Pas de procédure ou travaux en cours ou à venir.
Immeuble BBC
L'appartement PMR dispose de 2 chambres, sdb séparée et wc séparé ,
et d'un jardin ensoleillé toute la journée demandant peu d'entretien. Exposition sud
Aucun travaux à prévoir
Résidence calme arborée , matériaux et finition de qualité .
Faibles charges
taxe foncière 1400€
Idéal premier achat ou investissement locatif
Les informations sur les risques auxquels ce bien est exposé sont disponibles sur le site Georisque : georisques. gouv. fr
Ruslana Fedoriv - EI - est Agent Commercial mandataire en immobilier, immatriculé au Registre Spécial des Agents Commerciaux du Tribunal de Commerce de Créteil sous le n°832825301.
Siège social du mandant : effiCity, 48 avenue de Villiers - 75017 PARIS - Société par Actions Simplifiée, société au capital de 132 373,05 euros, immatriculée au RCS Paris 497 617 746 et titulaire de la Carte professionnelle CPI 7501 2015 000 002 025 - CCI Paris IDF - Caisse de Garantie : GALIAN Assurances 89 rue de la Boétie 75008 Paris
56 m²
2 821 €
23 m²
3
2
1
1
2012
Sud
Oui
Oui
Consommations énergétiques
Logement économe
150
Logement énergivore (kWhEP/m2/an)
Émissions de gaz à effet de serre
Faible émission de GES
30
Forte émission de GES(kgeqCO2/m2/an)
Contact Mme Ruslana Fedoriv
Contacter gratuitement à l'aide du formulaire ci-dessous.