Appartement 3 Pièces avec Potentiel d'Aménagement des COMBLES en plus.
A 5 minutes gare de Groslay et des commerces, cet appartement de 53 m² situé au premier et dernier étage d'une petite copropriété est une opportunité rare.
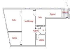
Il se compose d'une entrée avec un grand dégagement, d'un séjour lumineux exposé sud-ouest, d'une cuisine séparée pouvant être ouverte sur la pièce de vie, de deux chambres avec rangements et d'une salle de bains avec WC séparés.
Les combles, accessibles par une échelle escamotable, offrent un fort POTENTIEL d'aménagement pour agrandir l'espace habitable.
L'immeuble est bien entretenu avec un ravalement déjà réalisé. Chauffage individuel au gaz, double vitrage et charges annuelles de copropriété de 1 330 €. La consommation réelle en Gaz/Électricité à l'année est de 1821€uros soit 152€ mensuel.
Prix de vente : 195 000 € frais d'agence inclus. Honoraires à la charge du vendeur.
DPE: E réalisé le 24/11/2024. Montant estimé des dépenses annuelles d'énergie pour un usage standard: entre 1530€ et 2120€ par an. Prix moyens des énergies indexés sur l'année 2023 (abonnements compris). Consommation énergie primaire : 319 kWh/m²/an. Consommation énergie finale : 312 kWh/m²/an
Les informations sur les risques auxquels ce bien est exposé sont disponibles sur le site Géorisques : www.georisques.gouv.fr
Les informations sur les risques auxquels ce bien est exposé sont disponibles sur le site Georisque : georisques. gouv. fr
François Vaz - EI - est Agent Commercial mandataire en immobilier, immatriculé au Registre Spécial des Agents Commerciaux du Tribunal de Commerce de Pontoise sous le n°393540059.
Siège social du mandant : effiCity, 48 avenue de Villiers - 75017 PARIS - Société par Actions Simplifiée, société au capital de 132 373,05 euros, immatriculée au RCS Paris 497 617 746 et titulaire de la Carte professionnelle CPI 7501 2015 000 002 025 - CCI Paris IDF - Caisse de Garantie : GALIAN Assurances 89 rue de la Boétie 75008 Paris
53 m²
3 585 €
3
2
1
1
1 sur 1
1930
Ouest
Oui
Oui
Consommations énergétiques
Logement économe
319
Logement énergivore (kWhEP/m2/an)
Émissions de gaz à effet de serre
Faible émission de GES
69
Forte émission de GES(kgeqCO2/m2/an)
Contact François VAZ
Contacter gratuitement à l'aide du formulaire ci-dessous.