SAINT HERBLAIN - 44800 - STUDIO - 111 500€ FAI
Efficty, l'agence qui estime votre bien en ligne vous propose ce bien de 27 m2 situé à Saint Herblain.
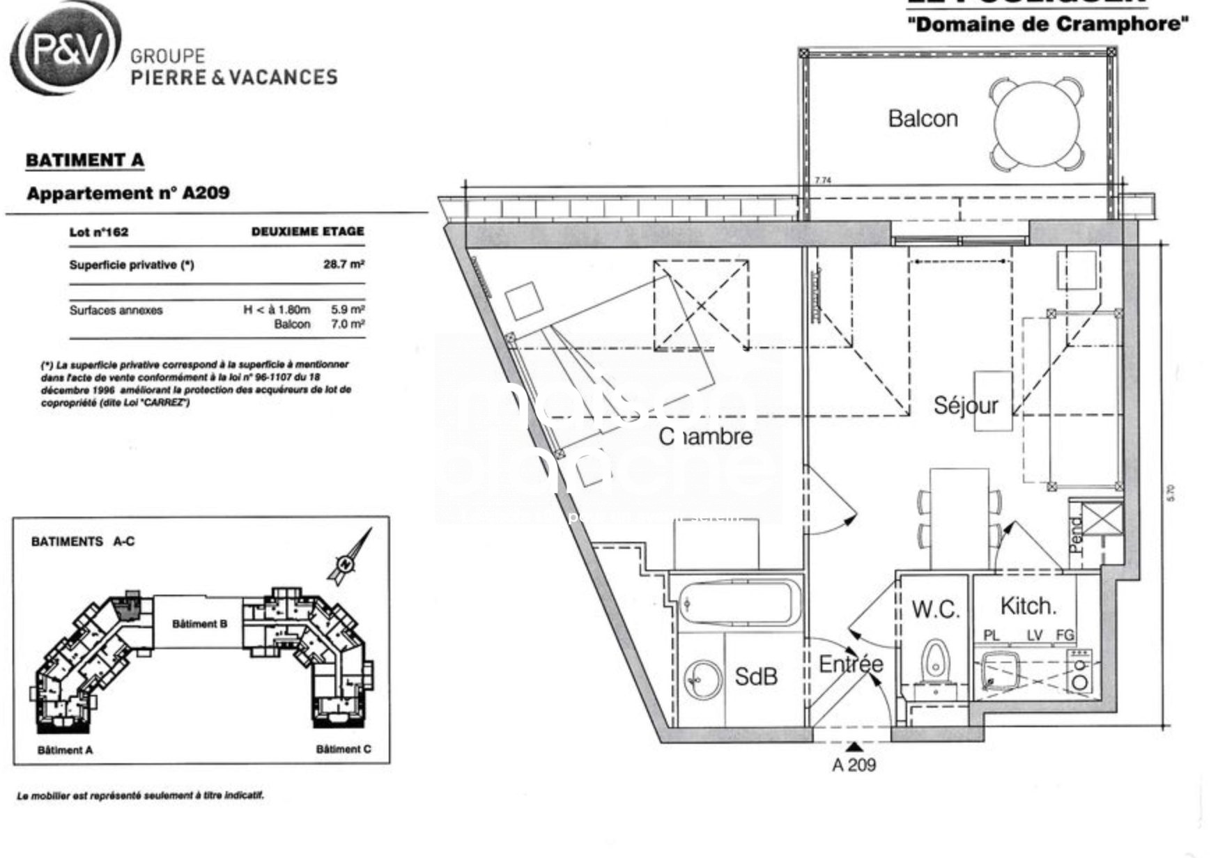
Ce studio d'un immeuble avec ascenseur au 2 ème étage comprend :
Une entrée avec placard, une pièce de vie avec kitchenette, salle d'eau avec wc et une place de parking en sous-sol fermé et sécurisé.
L'entrée de l'immeuble est sécurisé avec interphone.
Le sudio se trouve à 300 mètres des transports en communs.
Une locataire est en place en ce moment dans le studio.
Pour plus de détails, contactez votre conseiller.
Les informations sur les risques auxquels ce bien est exposé sont disponibles sur le site Georisque : georisques. gouv. fr
Renaud Lanoë - EI - est Agent Commercial mandataire en immobilier, immatriculé au Registre Spécial des Agents Commerciaux du Tribunal de Commerce de Saint Nazaire sous le n°888298106.
Siège social du mandant : effiCity, 48 avenue de Villiers - 75017 PARIS - Société par Actions Simplifiée, société au capital de 132 373,05 euros, immatriculée au RCS Paris 497 617 746 et titulaire de la Carte professionnelle CPI 7501 2015 000 002 025 - CCI Paris IDF - Caisse de Garantie : GALIAN Assurances 89 rue de la Boétie 75008 Paris
26 m²
4 288 €
1
1
1
1
2 sur 4
2014
Nord
Oui
Oui
Consommations énergétiques
Logement économe
129
Logement énergivore (kWhEP/m2/an)
Émissions de gaz à effet de serre
Faible émission de GES
24
Forte émission de GES(kgeqCO2/m2/an)
Contact M. Renaud Lanoë
Contacter gratuitement à l'aide du formulaire ci-dessous.