Marseille 13012 ? Les Olives / Les 3 Lucs - T3 - 64M2 + TERRASSE
EffiCity, l'agence immobilière qui estime votre bien en ligne, vous propose ce très bel appartement de 3 pièces situé dans un secteur recherché, entre Les Olives et Les 3 Lucs, dans le 12e arrondissement de Marseille.
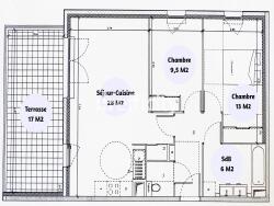
64 m² habitables parfaitement agencés, complétés par une magnifique terrasse de 17,60 m² exposée Ouest, avec vue dégagée et sans vis-à-vis.
Situé au 2e étage avec ascenseur d'une résidence moderne sous garantie décennale, ce bien offre calme, luminosité et confort, dans un environnement paisible et bien desservi.
Vous découvrirez :
?Une entrée accueillante
?Une belle pièce de vie lumineuse avec cuisine américaine ouverte totalement meublée et équipée en électroménager de marque SMEG (FOUR, PLAQUE DE CUISSON, LAVE VAISSELLE)
?Deux chambres confortables avec dressing aménagé dans chaque chambre
?Une salle de bain moderne de 6M2 pouvant accueillir un lave linge
?Des toilettes séparées aux normes PMR
?Une climatisation réversible dans le séjour pour un confort optimal toute l'année
Possibilité d'acquérir une place de stationnement en sous-sol au prix de 16 000 €.
À proximité immédiate de la clinique Chantecler, des écoles, commerces et transports, vous profitez d'un cadre de vie pratique et qualitatif.
Copropriété de 2019 bien entretenue (4 étages), avec façade et parties communes en excellent état, construite en béton, garantissant un investissement durable et sécurisé.
Points forts : Résidence récente ? Garantie décennale - Terrasse de 17,6 m² exposée Ouest - Stationnement supplémentaire en option - Climatisation réversible - Quartier recherché, calme et bien desservi
Charges de copropriété : 160 eur par mois comprenant : Eau froide, Eau chaude, Entretiens des communs, Portail, portillon, Assurance de la copro, Honoraires de syndic, Protection Incendie, VMC, Ascenseur...
Chauffage individuel : Radiateurs et climatisation réversible pour le séjour
Taxe Foncière : 1452 EUR
Pour plus d'informations Contactez moi : Roger FEVRE ? Conseiller immobilier EffiCity - 06 16 91 03 23 - rfevre@efficity.com
Les informations sur les risques auxquels ce bien est exposé sont disponibles sur le site Georisque : georisques. gouv. fr
Roger Fevre - EI - est Agent Commercial mandataire en immobilier, immatriculé au Registre Spécial des Agents Commerciaux du Tribunal de Commerce de Marseille sous le n°902764935.
Siège social du mandant : effiCity, 48 avenue de Villiers - 75017 PARIS - Société par Actions Simplifiée, société au capital de 132 373,05 euros, immatriculée au RCS Paris 497 617 746 et titulaire de la Carte professionnelle CPI 7501 2015 000 002 025 - CCI Paris IDF - Caisse de Garantie : GALIAN Assurances 89 rue de la Boétie 75008 Paris
64 m²
4 203 €
3
2
1
1
2 sur 4
2019
Ouest
Oui
Oui
Consommations énergétiques
Logement économe
53
Logement énergivore (kWhEP/m2/an)
Émissions de gaz à effet de serre
Faible émission de GES
2.2
Forte émission de GES(kgeqCO2/m2/an)
Contact M. Roger Fevre
Contacter gratuitement à l'aide du formulaire ci-dessous.