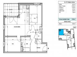
APPARTEMENT -T3 - 57m² - LINGOLSHEIM - BALCON - PLACE DE PARKING
Efficity, le site qui estime votre bien et Marie CHANVRIER vous proposent à la vente cet appartement de 3 pièces de 57 m² situé au 3ème étage d'un immeuble de 5 étages.
Ce bien est aménagé de la manière suivante:
- Séjour de 25m2
- Deux chambres
- Cuisine ouverte sur le séjour
- 1 salle de bain
- WC séparé
Atouts:
- Balcon de 6m2 pour profiter des beaux jours,
- Place de parking,
- Cave,
- Tranquillité d'un immeuble avec ascenseur,
- Confort du double vitrage et des volets roulants électriques.
A proximité de cet appartement se trouve une pharmacie, une boulangerie, une école, une micro-crèche, arrêt de tram à 4min à pieds.
Caractéristiques techniques :
- Taxe foncière: 861€
- Charges de copropriété (si applicable): 160€/mois
- Mode de chauffage: Collectif au gaz
- Distribution eau : Gaz
Les informations sur les risques auxquels ce bien est exposé sont disponibles sur le site Georisque : georisques. gouv. fr
Marie Chanvrier - EI - est Agent Commercial mandataire en immobilier, immatriculé au Registre Spécial des Agents Commerciaux du Tribunal de Commerce de Strasbourg sous le n°921667770.
Siège social du mandant : effiCity, 48 avenue de Villiers - 75017 PARIS - Société par Actions Simplifiée, société au capital de 132 373,05 euros, immatriculée au RCS Paris 497 617 746 et titulaire de la Carte professionnelle CPI 7501 2015 000 002 025 - CCI Paris IDF - Caisse de Garantie : GALIAN Assurances 89 rue de la Boétie 75008 Paris
57 m²
4 035 €
3
2
1
1
3 sur 5
2023
Ouest
Oui
Oui
Consommations énergétiques
Logement économe
77
Logement énergivore (kWhEP/m2/an)
Émissions de gaz à effet de serre
Faible émission de GES
1
Forte émission de GES(kgeqCO2/m2/an)
Contact Mme Marie Chanvrier
Contacter gratuitement à l'aide du formulaire ci-dessous.