PARIS 75019 / PLACE DES FÊTES / APPARTEMENT 3 PIÈCES / 75 M² / 2 CHAMBRES / TRÈS LUMINEUX / À RAFRAÎCHIR
Idéal jeune couple ou investisseur.
AC | IMMO _ Antonin Chauchard (Mandataire Immobilier) et effiCity vous proposent ce grand 3 pièces de 73,5 m² Carrez situé Place des Fêtes, au sein d'une copropriété des années 70 très bien sécurisée et gardiennée.
Cet appartement sans aucune perte de place nécessite toutefois un rafraîchissement.
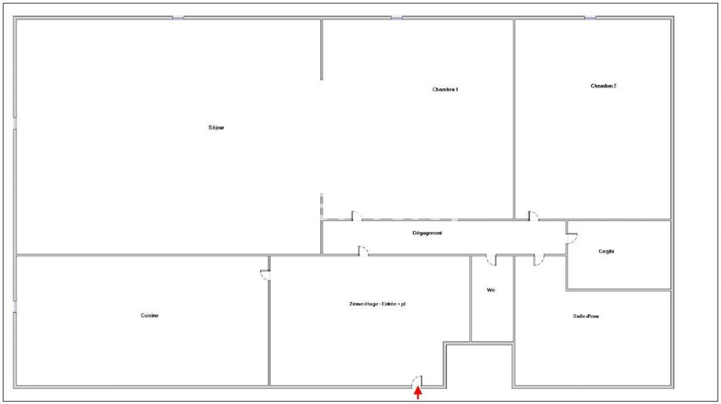
Situé au 2ème étage (sur 22), il se compose ainsi :
Entrée avec rangement
Cuisine séparée (ouverture sur salon possible)
Double living-room spacieux (possibilité 2nde chambre)
1 chambre
1 salle de bain
WC séparés
Dressing
Une cave et un local à vélos complètent ce bien.
Transports : Place des Fêtes (L11 et 7b) et tramway T3b
Marché : Place des Fêtes (Mardi/Vendredi/Dimanche)
Commodités : écoles, crèches, médiathèque, piscines, commerces, restaurants, Parc des Buttes-Chaumont, Parc de La Villette...
Charges de copropriété = 488 €/mois (eau, chauffage, gardien, ascenseurs, entretien parties communes)
Taxe Foncière = 1611 €/an
Pour plus d'informations ou pour organiser une visite, contactez-moi !
Antonin CHAUCHARD
Les informations sur les risques auxquels ce bien est exposé sont disponibles sur le site Georisque : georisques. gouv. fr
Antonin Chauchard - EI - est Agent Commercial mandataire en immobilier, immatriculé au Registre Spécial des Agents Commerciaux du Tribunal de Commerce de Bobigny sous le n°921719795.
Siège social du mandant : effiCity, 48 avenue de Villiers - 75017 PARIS - Société par Actions Simplifiée, société au capital de 132 373,05 euros, immatriculée au RCS Paris 497 617 746 et titulaire de la Carte professionnelle CPI 7501 2015 000 002 025 - CCI Paris IDF - Caisse de Garantie : GALIAN Assurances 89 rue de la Boétie 75008 Paris
73 m²
5 137 €
23 m²
3
2
1
1
2 sur 22
1974
Ouest
Oui
Oui
Consommations énergétiques
Logement économe
233
Logement énergivore (kWhEP/m2/an)
Émissions de gaz à effet de serre
Faible émission de GES
47
Forte émission de GES(kgeqCO2/m2/an)
Contact M. Antonin Chauchard
Contacter gratuitement à l'aide du formulaire ci-dessous.