35000 RENNES - ARSENAL REDON, BLD VOLTAIRE - MÉTRO MABILAIS - APPARTEMENT RÉCENT LUMINEUX AVEC VUE DÉGAGÉE, RÉSIDENCE SÉCURISÉE et PARKING -
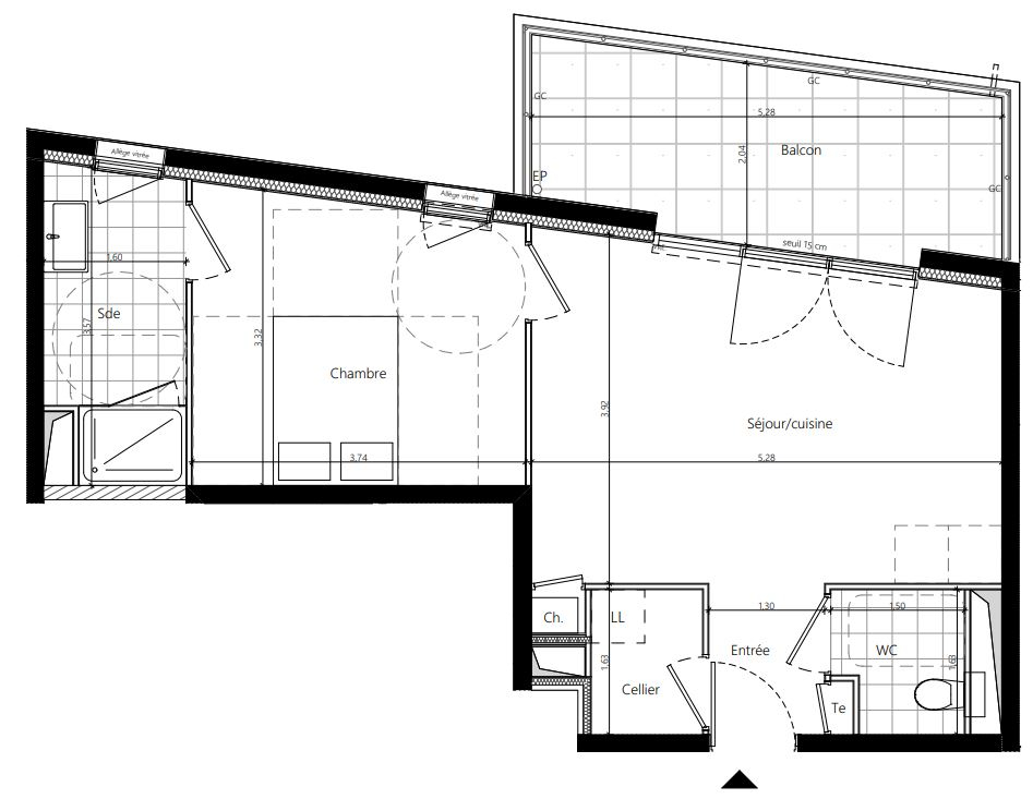
Efficity, l'agence qui estime votre bien en ligne, et Alexandra Dufourd vous proposent cet agréable appartement lumineux grâce à son exposition plein Sud. DPE C. Superficie 68,17m2.
Situé au 2? étage avec ascenseur, il offre une entrée avec placard, une belle pièce de vie avec cuisine équipée ouverte sur un salon-séjour. L'espace nuit se compose de 2 CHAMBRES dont une avec un grand placard.
Salle-de-bains et WC séparés.
En complément, vous disposez d'une place de parking en sous-sol ainsi qu'un local à vélos.
Idéalement situé au sud-ouest de Rennes, quartier Arsenal-Redon, vous profiterez d'un cadre de vie agréable, à proximité immédiate du métro Mabilay, des commerces, des commodités et de la rocade.
Les informations sur les risques auxquels ce bien est exposé sont disponibles sur le site Georisque : georisques. gouv. fr
Alexandra Dufourd - EI - est Agent Commercial mandataire en immobilier, immatriculé au Registre Spécial des Agents Commerciaux du Tribunal de Commerce de Rennes sous le n°453013427.
Siège social du mandant : effiCity, 48 avenue de Villiers - 75017 PARIS - Société par Actions Simplifiée, société au capital de 132 373,05 euros, immatriculée au RCS Paris 497 617 746 et titulaire de la Carte professionnelle CPI 7501 2015 000 002 025 - CCI Paris IDF - Caisse de Garantie : GALIAN Assurances 89 rue de la Boétie 75008 Paris
70 m²
3 571 €
3
2
1
2
2007
Sud
Oui
Oui
Consommations énergétiques
Logement économe
161
Logement énergivore (kWhEP/m2/an)
Émissions de gaz à effet de serre
Faible émission de GES
5
Forte émission de GES(kgeqCO2/m2/an)
Contact Mme Alexandra Dufourd
Contacter gratuitement à l'aide du formulaire ci-dessous.