01210-FERNEY VOLTAIRE-T3-65m2-TERRASSE 10m2- GARAGE-FRAIS DE NOTAIRE REDUITS
Efficity, l'agence qui estime votre bien en ligne, et Pablo Caraballo Machado vous proposent à Ferney Voltaire: dans un quartier Résidentiel, ce charmant appartement au troisième étage d'une surface de 65 m2, avec une terrasse de 10 m2 qui complète cet espace pour vos repas et vos moments de détente
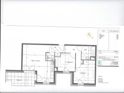
L'intérieur se compose de:
HALL: 5,27m2
SEJOUR/CUISINE :30 m2
CH1: 9,90 m2
CH2: 12,93 m2
SDB : 5,05 m2
WC : 2,00 m2
COTE TECHNIQUE:
Chauffage individuel au gaz par radiateurs
Sèche-serviette dans la SDB
Isolation thermique et acoustique aux normes actuelles
Fenêtre double vitrage
Volets roulant électrique
Carrelage 60/60 dans les pièces de vie et pièces d'eau
Parquet Flottant bois 14 mmm dans les CH
Fibre Optique
COTE PRATIQUE
Le Garage EST PREVU DANS LE PRIX
A PROXIMITE
Genève à 3 kms
A deux pas de l'hypercentre et toutes commodités et loisirs
Proche ecoles maternelles et primaires
Proche de la Cité Scolaire Internationale
Proche d'une de Bus Transfrontalière, la ligne Y reliant au CERN et à l'Aéroport, la ligne F reliant Genève-gare Cornavin
COTE FINANCES:
Charges de copropriété à définir
Taxe Foncière à définir
Frais de notaire réduits ( environ 3%)
Défiscalisation possible si le dispositif est maintenu.
Les informations sur les risques auxquels ce bien est exposé sont disponibles sur le site Georisque : georisques. gouv. fr
Pablo Caraballo Machado - EI - est Agent Commercial mandataire en immobilier, immatriculé au Registre Spécial des Agents Commerciaux du Tribunal de Commerce de Annecy sous le n°901810127.
Siège social du mandant : effiCity, 48 avenue de Villiers - 75017 PARIS - Société par Actions Simplifiée, société au capital de 132 373,05 euros, immatriculée au RCS Paris 497 617 746 et titulaire de la Carte professionnelle CPI 7501 2015 000 002 025 - CCI Paris IDF - Caisse de Garantie : GALIAN Assurances 89 rue de la Boétie 75008 Paris
65 m²
6 569 €
30 m²
3
2
1
3 sur 5
2024
Oui
Oui
Consommations énergétiques
Logement économe
100
Logement énergivore (kWhEP/m2/an)
Émissions de gaz à effet de serre
Faible émission de GES
12
Forte émission de GES(kgeqCO2/m2/an)
Contact PABLO CARABALLO MACHADO
Contacter gratuitement à l'aide du formulaire ci-dessous.