94190 ? VILLENEUVE-SAINT-GEORGES ? QUARTIER TRIAGE EN PLEIN RENOUVEAU ? À 3 MIN À PIED DU RER D ? 2 PIÈCES ? 1 CHAMBRE ? 32 M² ? IDÉAL PREMIER ACHAT OU INVESTISSEMENT LOCATIF
effiCity, l'agence qui estime votre bien en ligne, vous propose ce charmant 2 pièces de 32 m², situé dans le quartier Triage.
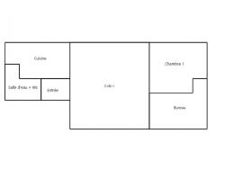
Sans vis-à-vis, lumineux et bien agencé, cet appartement se compose d'une pièce de vie agréable, d'une cuisine fonctionnelle, d'une salle d'eau avec WC, et d'une chambre actuellement scindée en deux espaces distincts.
Cette configuration modulable est idéale pour créer un coin nuit et un espace bureau ou enfant. L'ensemble de l'espace est optimisé, sans perte de place.
Parfait pour un premier achat, un pied-à-terre ou un investissement locatif.
Situé à seulement 3 minutes à pied du RER D (station Villeneuve-Triage), vous rejoignez Paris-Gare de Lyon en 15 minutes. À proximité immédiate : commerces (supermarché, boulangerie, restaurants, pharmacie), crèches, écoles, équipements sportifs et structures médicales. Accès rapide aux berges de Seine pour les promenades et les loisirs.
Le quartier Triage bénéficie de projets d'aménagement urbain ambitieux : développement des commerces, amélioration du cadre de vie, revalorisation du bâti. Un secteur en pleine transformation, de plus en plus prisé par les jeunes actifs et les investisseurs.
Pour plus d'informations ou pour planifier une visite, contactez-moi dès maintenant.
Les informations sur les risques auxquels ce bien est exposé sont disponibles sur le site Georisque : georisques. gouv. fr
Delphine Abisror - EI - est Agent Commercial mandataire en immobilier, immatriculé au Registre Spécial des Agents Commerciaux du Tribunal de Commerce de Créteil sous le n°793121856.
Siège social du mandant : effiCity, 48 avenue de Villiers - 75017 PARIS - Société par Actions Simplifiée, société au capital de 132 373,05 euros, immatriculée au RCS Paris 497 617 746 et titulaire de la Carte professionnelle CPI 7501 2015 000 002 025 - CCI Paris IDF - Caisse de Garantie : GALIAN Assurances 89 rue de la Boétie 75008 Paris
32 m²
3 656 €
2
1
1
1
Sud
Oui
Oui
Consommations énergétiques
Logement économe
275
Logement énergivore (kWhEP/m2/an)
Émissions de gaz à effet de serre
Faible émission de GES
55
Forte émission de GES(kgeqCO2/m2/an)
Contact Mme Delphine Abisror
Contacter gratuitement à l'aide du formulaire ci-dessous.