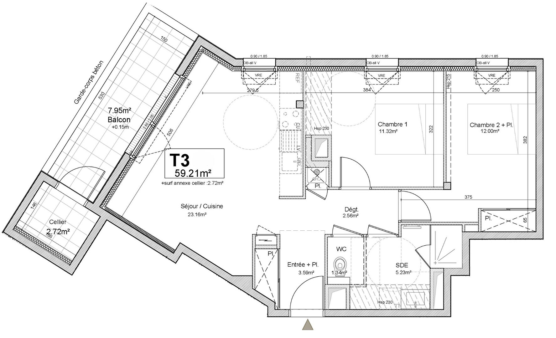
35830 BETTON ? APPARTEMENT EN REZ DE JARDIN ? 74 M² HABITABLES ? 2 CHAMBRES ? TERRASSES ? GARAGE ? VISITE IMMERSIVE A DISTANCE.
effiCity l'agence immobilière qui estime votre bien en ligne vous propose EN EXCLUSIVITÉ cet appartement d'une surface habitable de 74 m² EN REZ DE JARDIN situé dans une résidence calme de 2007 avec ascenseur.
Le hall d'entrée composé d'un placard distribue une cuisine aménagée et équipée ouverte sur une AGRÉABLE et LUMINEUSE pièce de vie salon/séjour de 41 m² avec accès direct sur deux TERRASSES orientées SUD.
La partie nuit se compose de deux chambres dont une avec placard, une salle d'eau et un WC séparé.
Un garage fermé de 19 m² en sous-sol sécurisé et un local vélos en commun complètent l'appartement.
Ce bien à la décoration soignée, idéalement situé, proche de tous commerces, des écoles, des transports en communs (arrêt réseau STAR ligne 78 à 50 m) et à 5 minutes de l'entrée de Rennes saura vous séduire par sa tranquillité et son emplacement privilégié.
Copropriété de 191 lots dont 92 à usage d'habitation.
Pas de procédure en cours.
Charges annuelles 1225 Euros.
Possibilité de faire une 3 ieme chambre dans le séjour.
Il ne reste plus qu'à poser vos valises.
Visite immersive à distance sur demande.
Pour plus d'informations, contactez Noan LE GUELLEC au 06.82.97.73.22
Les informations sur les risques auxquels ce bien est exposé sont disponibles sur le site Georisque : georisques. gouv. fr
Noan Le Guellec - EI - est Agent Commercial mandataire en immobilier, immatriculé au Registre Spécial des Agents Commerciaux du Tribunal de Commerce de Rennes sous le n°882197361.
Siège social du mandant : effiCity, 48 avenue de Villiers - 75017 PARIS - Société par Actions Simplifiée, société au capital de 132 373,05 euros, immatriculée au RCS Paris 497 617 746 et titulaire de la Carte professionnelle CPI 7501 2015 000 002 025 - CCI Paris IDF - Caisse de Garantie : GALIAN Assurances 89 rue de la Boétie 75008 Paris
74 m²
3 584 €
34 m²
4
2
1
1
1
2007
Sud
Oui
Oui
Consommations énergétiques
Logement économe
153
Logement énergivore (kWhEP/m2/an)
Émissions de gaz à effet de serre
Faible émission de GES
4
Forte émission de GES(kgeqCO2/m2/an)
Contact M. Noan Le Guellec
Contacter gratuitement à l'aide du formulaire ci-dessous.