À Vendre ? Superbe T2 Neuf de 40,28 m² ? Livraison Mai 2026 ? Pradines (Route du Gymnase):
Découvrez ce bel appartement T2 de 40,28 m², situé au 1er étage d'une résidence neuve actuellement en construction à Pradines, dans un environnement calme et pratique.
Appartement témoin disponible pour organiser facilement une visite et vous projeter dans votre futur logement !
Un intérieur lumineux et fonctionnel:
L'appartement se compose de :
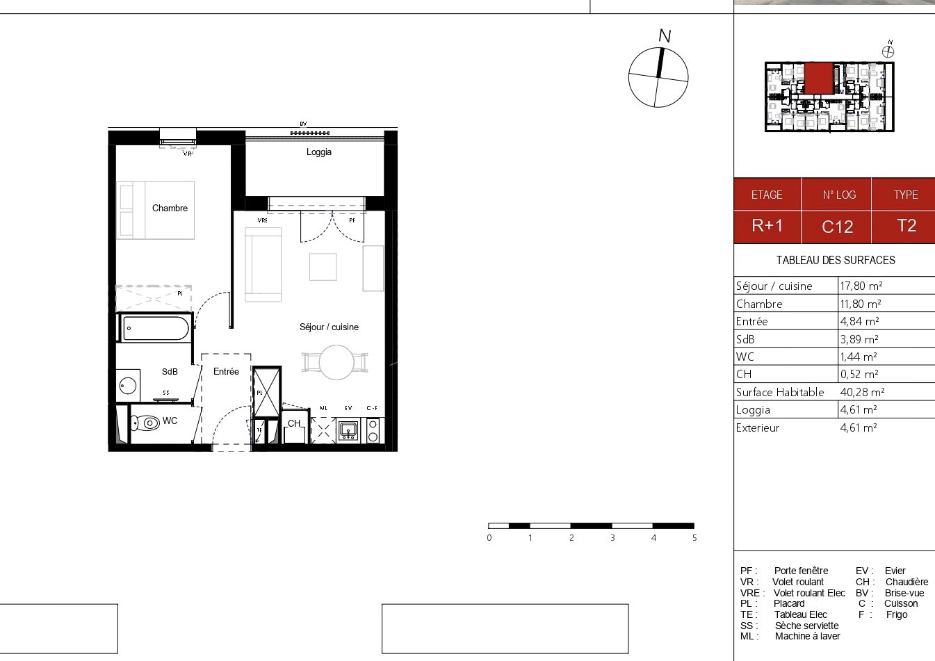
Une entrée avec placard équipé
Un séjour-cuisine lumineux grâce à sa grande baie vitrée donnant accès à une loggia
Une chambre confortable
Une salle de bain moderne
Un WC séparé
Prestations de qualité:
Chauffage individuel au gaz
Sols : stratifié dans la chambre, carrelage grès émaillé dans les autres pièces
Murs : peinture lisse blanche velours ou satinée
Salle de bain équipée : meuble vasque, miroir, point lumineux, receveur de douche ou baignoire en acier émaillé blanc, faïence colorée
Cuisine aménagée
Pré-équipement fibre optique
Détecteur de fumée
Attentes pour lave-linge / lave-vaisselle
Extérieurs & Résidence:
Loggia en béton armé avec finition lames bois ou dalles sur plots
Prise extérieure étanche + point lumineux
Espaces verts communs paysagers
Fenêtres PVC ? volets roulants électriques sur la baie du séjour
Porte palière sécurisée (serrure 3 points)
Une place de parking attitrée incluse avec l'appartement
Également disponible en LOCATION-ACCESSION !
Profitez d'un parcours d'achat facilité et très avantageux (Sous conditions d'éligibilité):
TVA réduite
Exonération de taxe foncière pendant 15 ans
Pas de cumul loyer / remboursement d'emprunt
Frais de notaire réduits.
Livraison prévue : Mai 2026
Ne manquez pas cette opportunité unique dans un secteur recherché !
Contactez-nous dès aujourd'hui pour visiter l'appartement témoin et réserver votre futur logement.
40 m²
3 025 €
2
1
1
2025
Coin cuisine
Oui
Oui
Contact SELECTION HABITAT
Contacter gratuitement à l'aide du formulaire ci-dessous.