13009 - MARSEILLE - 4 PIECES - 3 CHAMBRES - 86.0m² - APPARTEMENT AVEC TERRASSE ET PARKING
efficity, l'agence qui estime votre bien en ligne, vous propose cet appartement lumineux de 86 m² situé dans le quartier vallon de Toulouse à Marseille.
Situé au 2? étage d'un immeuble bien entretenu avec ascenseur, cet appartement de type T4 dispose d'une belle terrasse de 20 m² offrant une vue dégagée et ensoleillée toute la journée. Un stationnement extérieur privatif est également inclus au sein de la copropriété fermée et sécurisée
La résidence, construite en 2003, est idéalement placée dans un environnement résidentiel, à deux pas des commerces de proximité, des écoles et des transports, avec un accès rapide aux grands axes (autoroute, boulevard Urbain Sud) et aux centres d'intérêt du 9? (parcs, colline, complexes sportifs?).
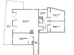
L'espace intérieur se compose d'un séjour spacieux de 34 m² ouvrant sur la terrasse, de trois chambres confortables dont une avec salle d'eau privative, d'une cuisine équipée, d'une salle de bains et de WC séparés. La configuration de plain-pied assure une circulation fluide et un confort de vie au quotidien, que ce soit pour une famille, un couple avec télétravail ou un investissement locatif de qualité.
Cet appartement traversant bénéficie d'une exposition idéale Sud-Est, offrant une luminosité naturelle et chaleureuse tout au long de la journée, ainsi qu'une vue dégagée sans vis-à-vis direct depuis la terrasse, agréable pour les repas en extérieur ou les moments de détente.
Chauffage individuel électrique et eau chaude par cumulus électrique.
Charges : 200 € par mois comprenant l'eau froide, l'entretien des parties communes, l'ascenseur, le portail et le portillon automatiques, l'assurance de la copropriété, les espaces verts/jardin, les honoraires du syndic et la VMC.
Contactez moi dès maintenant pour organiser une visite : Roger FEVRE au 06 16 91 03 23 ou par mail : rfevre@efficity.com.
Les informations sur les risques auxquels ce bien est exposé sont disponibles sur le site Georisque : georisques. gouv. fr
Roger Fevre - EI - est Agent Commercial mandataire en immobilier, immatriculé au Registre Spécial des Agents Commerciaux du Tribunal de Commerce de Marseille sous le n°902764935.
Siège social du mandant : effiCity, 48 avenue de Villiers - 75017 PARIS - Société par Actions Simplifiée, société au capital de 132 373,05 euros, immatriculée au RCS Paris 497 617 746 et titulaire de la Carte professionnelle CPI 7501 2015 000 002 025 - CCI Paris IDF - Caisse de Garantie : GALIAN Assurances 89 rue de la Boétie 75008 Paris
86 m²
3 547 €
34 m²
4
3
1
1
1
2 sur 4
2003
Sud
Oui
Oui
Consommations énergétiques
Logement économe
106
Logement énergivore (kWhEP/m2/an)
Émissions de gaz à effet de serre
Faible émission de GES
3
Forte émission de GES(kgeqCO2/m2/an)
Contact M. Roger Fevre
Contacter gratuitement à l'aide du formulaire ci-dessous.