93250 - VILLEMOMBLE - APPARTEMENT - T2 ou T3 - 56 m² - BALCON LARGE - QUARTIER NORD EST - BOX FERMÉ - GARE 600 MÈTRES - CALME -
Les + : TERRASSE avec VUE DEGAGEE - LUMINEUX - Parquet baguette - BOX - SUD OUEST
Cet appartement de 56 m² CARREZ comporte 2 PIÈCES ORIENTÉES SUD OUEST situé AVENUE MARIE + un BALCON SPACIEUX avec cave et BOX fermé.
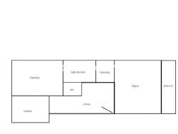
Au coeur d'un immeuble de taille familiale de 2 étages, ce T2 dispose d'une entrée avec un séjour de 20 M2 , d'un balcon filant du séjour, une cuisine indépendante (ou petite chambre bureau), un dressing ou une cuisine ouverte, SDB et WC séparés.Prévoir Travaux de peinture et créez votre cuisine, votre agencement des espaces si vous voulez les modifier.
Ce bien comprend un BOX fermé - Cave - Escalier - Local vélo .
Chaudière gaz individuelle - Taxe Foncière : 1.112 € - Charges trimestrielles : 201 €
A visiter ABSOLUMENT
Les informations sur les risques auxquels ce bien est exposé sont disponibles sur le site Georisque : georisques. gouv. fr
Gael Brossaud représentant de la EURL Gaël BROSSAUD Immobilier dont le siège social se situe 16 Rue Vandrezanne 75013 Paris - titulaire de la carte professionnelle CPI CPI75012024000000235 - CCI de Paris le 24/05/2024 - immatriculée au RCS de Paris sous le n°927 901 132 - immatriculée au Registre Spécial des Agents Commerciaux du Tribunal de Commerce de Paris sous le n°813142676.
Siège social du mandant : effiCity, 48 avenue de Villiers - 75017 PARIS - Société par Actions Simplifiée, société au capital de 132 373,05 euros, immatriculée au RCS Paris 497 617 746 et titulaire de la Carte professionnelle CPI 7501 2015 000 002 025 - CCI Paris IDF - Caisse de Garantie : GALIAN Assurances 89 rue de la Boétie 75008 Paris
56 m²
4 188 €
20 m²
2
1
1
1
2 sur 2
1960
Ouest
Oui
Oui
Consommations énergétiques
Logement économe
195
Logement énergivore (kWhEP/m2/an)
Émissions de gaz à effet de serre
Faible émission de GES
41
Forte émission de GES(kgeqCO2/m2/an)
Contact M. Gael Brossaud
Contacter gratuitement à l'aide du formulaire ci-dessous.