Spécial Investisseurs !
À Épinay-sur-Seine, au sein d'une copropriété bien entretenue et idéalement située à proximité des commerces, des écoles et des transports, découvrez ce grand appartement F4.
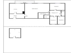
Il se compose de :
? Une entrée,
? Un salon-séjour lumineux donnant sur un balcon,
? Trois chambres,
? Une salle de bains,
? Un WC indépendant.
? Une cave complète ce bien.
Transports à proximité :
Plusieurs lignes de bus,
Tramway T8 à quelques minutes à pied,
Gare Transilien (ligne H) à proximité,
Accès facile au RER C pour rejoindre rapidement Paris et la région.
Un locataire est actuellement en place (fin de bail).
Pour plus d'informations ou pour organiser une visite, contactez Nadia Lagraf au : 0665039768
Les informations sur les risques auxquels ce bien est exposé sont disponibles sur le site Georisque : georisques. gouv. fr
Nadia Lagraf - EI - est Agent Commercial mandataire en immobilier, immatriculé au Registre Spécial des Agents Commerciaux du Tribunal de Commerce de Paris 15e Arrondissement sous le n°818104135.
Siège social du mandant : effiCity, 48 avenue de Villiers - 75017 PARIS - Société par Actions Simplifiée, société au capital de 132 373,05 euros, immatriculée au RCS Paris 497 617 746 et titulaire de la Carte professionnelle CPI 7501 2015 000 002 025 - CCI Paris IDF - Caisse de Garantie : GALIAN Assurances 89 rue de la Boétie 75008 Paris
69 m²
2 942 €
4
3
1
1
2
Oui
Oui
Consommations énergétiques
Logement économe
373
Logement énergivore (kWhEP/m2/an)
Émissions de gaz à effet de serre
Faible émission de GES
68
Forte émission de GES(kgeqCO2/m2/an)
Contact Mme Nadia Lagraf
Contacter gratuitement à l'aide du formulaire ci-dessous.