A VENDRE EN EXCLUSIVITE : AIX-NORD - RESIDENCE LOUBASSANE - 2 CHAMBRES - 61.0 m2 - BALCON - CAVE - A RENOVER ENTIEREMENT
Claire Caternuolo et Efficity, l'agence qui estime votre bien en ligne, vous proposent cet appartement lumineux de 61 m2 avec balcon, situé à 20 minutes à pied du centre historique d'Aix, dans un secteur calme et résidentiel.
Situé au 1er étage sur 3 d'une résidence des années 1970, cet appartement est traversant Nord-Sud, ce qui le rend très agréable à vivre.
A rénover complètement, il offre de belles perspectives d'aménagement et de personnalisation selon vos envies.
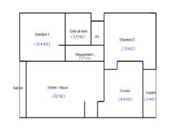
Il se compose comme suit : une entrée avec une belle pièce à vivre de 22 m2 ouvre sur le balcon de 4 m2 exposé Sud et donnant au calme sur les espaces verts de la résidence. La cuisine de 8 m2 est à recrééer complètement, elle ouvre sur une loggia bien pratique. L'espace nuit comprend 2 chambres de respectivement 13 et 10,4 m2, d'une salle de bains à rénover et de WC séparés.
Des devis ont déjà été réalisés pour les travaux :
- changement de toutes les fenêtres en double vitrage PVC : 6900 € TTC
- remise en peinture blanche de tous les murs : 5200 € TTC
- autres devis : en cours de réalisation
Le stationnement est libre et facile dans la résidence.
L'appartement est vendu avec une grande cave en sous-sol de 7,5 m2.
Les charges courantes sont de 220 € / mois et comprennent le chauffage collectif au gaz avec compteur individuel, l'eau froide, l'entretien des parties communes et des espaces verts, le syndic professionnel.
La taxe foncière 2025 est de 965 €.
La valeur locative de l'appartement une fois rénové pourra être d'environ 1100 à 1200 € / mois charges comprises selon les prestations mises en place.
Au niveau des diagnostics techniques : DPE en C, pas d'amiante, pas de termites, plusieurs anomalies électriques et anomalies gaz.
Je suis à votre écoute pour toute question ou pour organiser une visite !
Les informations sur les risques auxquels ce bien est exposé sont disponibles sur le site Georisque : georisques. gouv. fr
Claire Caternuolo - EI - est Agent Commercial mandataire en immobilier, immatriculé au Registre Spécial des Agents Commerciaux du Tribunal de Commerce de Aix-en-Provence sous le n°754054708.
Siège social du mandant : effiCity, 48 avenue de Villiers - 75017 PARIS - Société par Actions Simplifiée, société au capital de 132 373,05 euros, immatriculée au RCS Paris 497 617 746 et titulaire de la Carte professionnelle CPI 7501 2015 000 002 025 - CCI Paris IDF - Caisse de Garantie : GALIAN Assurances 89 rue de la Boétie 75008 Paris
61 m²
2 918 €
3
2
1
1 sur 3
1970
Oui
Oui
Consommations énergétiques
Logement économe
175
Logement énergivore (kWhEP/m2/an)
Émissions de gaz à effet de serre
Faible émission de GES
26
Forte émission de GES(kgeqCO2/m2/an)
Contact Claire Caternuolo
Contacter gratuitement à l'aide du formulaire ci-dessous.