13700 - MARIGNANE - CENTRE-VILLE - PARC HÉLÈNE BOUCHER- 3 PIÈCES - 2 CHAMBRES - 72.09M² - APPARTEMENT TRAVERSANT AVEC BALCON ET CAVE
efficity, l'agence qui estime votre bien en ligne, vous propose ce charmant appartement situé en plein c?ur du centre-ville de Marignane Parc Hélène Boucher.
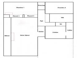
T3 dernier étage ? Grand séjour 25,5 m² !
Ancien T4 de 72 m² transformé en T3, lumineux et parfaitement agencé.
Traversant et lumineux
Séjour plein sud de 25,5 m² avec climatisation
2 chambres : 12 m² climatisée + 9 m²
Cave en sous-sol
4? et dernier étage (sans ascenseur)
Immeuble calme et bien entretenu
Un bien rare, idéal premier achat ou investissement locatif.
Quartier recherché à deux pas des commodités.
Ne tardez pas: appelez-moi vite!
Les informations sur les risques auxquels ce bien est exposé sont disponibles sur le site Georisque : georisques. gouv. fr
Julien Truong - EI - est Agent Commercial mandataire en immobilier, immatriculé au Registre Spécial des Agents Commerciaux du Tribunal de Commerce de Marseille sous le n°830444485.
Siège social du mandant : effiCity, 48 avenue de Villiers - 75017 PARIS - Société par Actions Simplifiée, société au capital de 132 373,05 euros, immatriculée au RCS Paris 497 617 746 et titulaire de la Carte professionnelle CPI 7501 2015 000 002 025 - CCI Paris IDF - Caisse de Garantie : GALIAN Assurances 89 rue de la Boétie 75008 Paris
72 m²
1 764 €
25 m²
3
2
1
4 sur 4
1960
Oui
Oui
Consommations énergétiques
Logement économe
258
Logement énergivore (kWhEP/m2/an)
Émissions de gaz à effet de serre
Faible émission de GES
30
Forte émission de GES(kgeqCO2/m2/an)
Contact M. Julien Truong
Contacter gratuitement à l'aide du formulaire ci-dessous.