91380 - CHILLY-MAZARIN - CENTRE-VILLE - 3 PIECES - 2 CHAMBRES - SURFACE 62.0 M² - EXPOSITION SUD - PARKING - TRANSPORTS EN COMMUN A PROXIMITE
Efficity, l'agence qui estime votre bien en ligne, vous propose cet appartement situé dans le quartier Molière à Chilly-Mazarin.
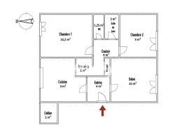
Cet appartement de 62m², entièrement rénové en 2024, situé au troisième étage sans ascenseur d'une petite copropriété calme et bénéficiant d'une exposition sud, se compose d'un séjour salon de 16m², de 2 chambres de 9 et 10m², d'une cuisine équipée de 9m², une salle d'eau, un dressing, un cellier, des toilettes séparées et de nombreux rangements.
Une cave et une place de parking extérieure sont aussi disponibles.
Isolation extérieure et de la cave refaite à neuf, ainsi que toute la tuyauterie, plomberie et électricité dans l'appartement.
AUCUNS TRAVAUX A PREVOIR.
Les espaces verts sont entretenus chaque semaine, et vous pourrez également profiter de la piscine et du terrain de tennis privés.
Proximité des transports en commun tels que le Tram 12 en direction d'Evry et Massy Palaiseau RER TGV et le Bus 297.
Les informations sur les risques auxquels ce bien est exposé sont disponibles sur le site Georisque : georisques. gouv. fr
Hans Varsovie - EI - est Agent Commercial mandataire en immobilier, immatriculé au Registre Spécial des Agents Commerciaux du Tribunal de Commerce de Évry-Courcouronnes sous le n°512852005.
Siège social du mandant : effiCity, 48 avenue de Villiers - 75017 PARIS - Société par Actions Simplifiée, société au capital de 132 373,05 euros, immatriculée au RCS Paris 497 617 746 et titulaire de la Carte professionnelle CPI 7501 2015 000 002 025 - CCI Paris IDF - Caisse de Garantie : GALIAN Assurances 89 rue de la Boétie 75008 Paris
62 m²
3 048 €
16 m²
3
2
1
1
3 sur 33
1974
Sud
Oui
Oui
Consommations énergétiques
Logement économe
250
Logement énergivore (kWhEP/m2/an)
Émissions de gaz à effet de serre
Faible émission de GES
30
Forte émission de GES(kgeqCO2/m2/an)
Contact M. Hans Varsovie
Contacter gratuitement à l'aide du formulaire ci-dessous.