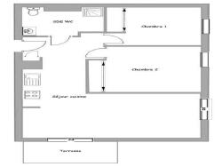
Fiche Id-UBW178228 : Juvignac, secteur R?sidence dominant spa et , T3 d'environ 57 m2 comprenant 3 piece(s) dont 2 chambre(s) + Balcon de 5 m2 - Vue : Dominante - Construction 2012 Beton - Equipements annexes : balcon - parking - double vitrage - ascenseur - et Climatisation r?versible - chauffage : Aucun Collectif - Classe Energie B : 72 kWh.m2.an - (DPE ancienne version) - Plus d'informations disponibles sur demande... - Mentions légales : Proposé à la vente à 188000 Euros (honoraires à la charge du vendeur) - Classe Energie B : 72 kWh.m2.an - (DPE ancienne version) - Bien en copropriété comprenant 52 lots - Charges annuelles : 1500 Euros/an (soit 125 Euros/mois) - Affaire suivie par Mr LAURENT ALIAGA (Agent immobilier - Responsable) - Reseau Immo-Diffusion Le Cres - Pour plus d'informations, contactez notre secrétariat au 09 74 53 13 81 (Appel gratuit ou prix d'une communication locale)
57 m²
3 298 €
3
2
2012
Sud
Ouest
Oui
Oui
Consommations énergétiques
Logement économe
72
Logement énergivore (kWhEP/m2/an)
Émissions de gaz à effet de serre
Faible émission de GES
9
Forte émission de GES(kgeqCO2/m2/an)
Contact IMMO DIFFUSION
Contacter gratuitement à l'aide du formulaire ci-dessous.