À vendre : Superbe 4 pièces à Noiséau (94 880)
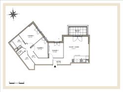
Découvrez ce magnifique appartement de 4 pièces, d'une superficie de 79,25 m², idéalement situé à seulement 19 km de Paris. Cet appartement, orienté ouest, vous séduira avec son entrée spacieuse, sa cuisine ouverte sur un séjour lumineux donnant sur un balcon, ainsi que trois grandes chambres. Vous bénéficierez également d'une salle de bain indépendante et de toilettes séparées.
Situé au deuxième étage avec ascenseur, cet appartement est proposé au prix de 332 euros, avec la possibilité d'acquérir un parking pour 10 000 euros supplémentaires.
À proximité : 8 km de Nogent-sur-Marne, 10 km de Créteil-Préfecture. Ne laissez pas passer cette opportunité unique !
Localisation idéale :
À proximité immédiate des transports (métro, gare), vous rejoindrez facilement Paris et ses environs. Vous trouverez également à deux pas tous les commerces, supermarchés et services indispensables au quotidien.
Cet appartement est une opportunité rare : espace, confort et emplacement stratégique réunis dans un même bien ! Efficacité énergétique et faibles charges et son isolation renforcée . La résidence répond a la nouvelle norme RE2020 qui vous garantira un confort maximal pour une consommation réduite .Cette acquisition vous permettra de bénéficier des garanties du constructeur vous assurant une sérénité sur votre investissement .
AFFICHER MOINSne place de parking en option à 10 000 euros. »
Les informations sur les risques auxquels ce bien est exposé sont disponibles sur le site Georisque : georisques. gouv. fr
Wesley Capelo Baubil - EI - est Agent Commercial mandataire en immobilier, immatriculé au Registre Spécial des Agents Commerciaux du Tribunal de Commerce de Nanterre sous le n°480092089.
Siège social du mandant : effiCity, 48 avenue de Villiers - 75017 PARIS - Société par Actions Simplifiée, société au capital de 132 373,05 euros, immatriculée au RCS Paris 497 617 746 et titulaire de la Carte professionnelle CPI 7501 2015 000 002 025 - CCI Paris IDF - Caisse de Garantie : GALIAN Assurances 89 rue de la Boétie 75008 Paris
79 m²
4 203 €
4
3
1
2
2025
Oui
Oui
Contact M. Wesley Capelo Baubil
Contacter gratuitement à l'aide du formulaire ci-dessous.