Votre agence CASA IMMO, agence immobilière à Caen, vous propose ce bel appartement 3 pièces et 71 m2. Situé à seulement 2 km de l'hypercentre de Caen, il est idéalement situé à proximité immédiate de toutes les commodités (transports, commerces, écoles). Au sein dans une résidence neuve et sécurisée, répondant aux dernières normes RE 2020, il offre une optimisation énergétique remarquable et des factures réduites au quotidien.
Ses atouts : Un séjour lumineux avec accès direct à un beau balcon de 6 m², idéal pour vos moments de détente Une grande chambre confortable avec de belles proportions Une cuisine fonctionnelle, ouverte sur le séjour Une salle de bain moderne Une place de parking couverte privative Un appartement aux surfaces généreuses, parfait pour un premier achat, un pied-à-terre ou un investissement locatif. Emplacement recherché : calme et pratique, alliant proximité du centre-ville et cadre de vie agréable
Un bien rare sur le secteur, idéal pour une résidence principale comme pour un investissement locatif de qualité.
Opportunité à saisir. Contactez dès maintenant votre agence CASA pour organiser une présentation.
Honoraires à la charge du vendeur. Non soumis au DPE. Les informations sur les risques auxquels ce bien est exposé sont disponibles sur le site Géorisques : georisques.gouv.fr.
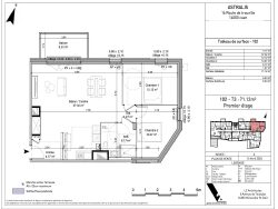
71 m²
3 872 €
6.00 m²
37.00 m²
3
2
1
1
1
2025
Nord
1 (6.00 m²)
Oui
1
Contact CASA IMMO
Contacter gratuitement à l'aide du formulaire ci-dessous.