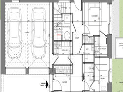
WWXB 4 PIECES ST PIERRE DE CHANDIEU (69780) 2 LIVRAISON JANVIER 2025 SE RENSEIGNER POUR LES REMISES EN COURS LES IMAGES DE PUBLICITE NE SONT PAS CONTRACTUELLES. CPI92012021000000226 T4 B001 91.83 m2 Étage 0 Orienté Ouest 2 parking terrasse 31.41 m2 jardin 76.2 m2 TVA NOMINALE 426 000 EUR
Lyon 69002 - 0
...62...
Dardilly 69570 - 0
...Euporia Immobilier vous propose des appartements de standing à Dardilly...
Saint-Pierre-de-Chandieu 69780 - 0
...CPI92012021000000226 T4 B003 92...